スタッフのコメント
関 泰生
東大前のハイグレード賃貸マンション【本郷エーワン東大前】のご紹介です。単身向けの間取りから広めの1LDKタイプをご用意しております!駅徒歩1分の好立地!東大生にも東大関係者の方にもぜひおすすめしたい物件でございます!南北線は都心部へのアクセスも良好ですし、1駅乗れば東京ドームもありますよ♪大通り沿いですので帰りが遅い女性の方も安心してご帰宅いただけます☆是非一度お問い合わせくださいませ♪
関 泰生
| セキュリティ | : |
築年数 | : |
| 建物設備 | : |
駅徒歩 | : |
| セキュリティ: | |
| 建物設備: | |
| 築年数: | |
| 駅徒歩: |
| 物件名 | 本郷エーワン東大前 | ||
|---|---|---|---|
| 住所 | 東京都文京区向丘1丁目2-4 | ||
| 最寄駅 |
東京メトロ南北線 東大前駅 徒歩1分 東京メトロ千代田線 根津駅 徒歩10分 都営三田線 白山駅 徒歩11分 |
||
| 学区 | 誠之小学校 | ||
| 構造 | RC | 総階数 | 地上12階建て |
| 賃料 | 116,000円 | 管理費 | 6,000円 |
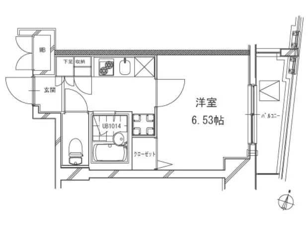
| 間取り | 1K | 面積 | 23.07㎡ |
| 駐車場 | 無 駐輪場有 | 築年月 | 2008年06月 |
| 問合番号 | 50871 | 更新日 | 2026/04/04 |
| 設備 | オートロック、法人契約相談可、駐輪場有、宅配BOX、コンビニ近、BS・CS、光ファイバー、インターネット対応、専用ゴミ置場、防犯カメラ、TVモニター付インターホン、東京大学徒歩圏、東京大学自転車圏、エレベーター、誠之小学校エリア、2階以上、コンロ二口以上、ガスキッチン、システムキッチン、エアコン、フローリング、浴室乾燥、バストイレ別、室内洗濯機置場、収納、礼金1以下、SOHO可 | ||
| 備考 | 【本郷エーワン東大前】の賃貸マンション情報! ■住居兼事務所相談(敷金1ヶ月分追加となります) 詳細閲覧ありがとうございます。最新の空室の確認、内覧のご予約はメール・電話にてお問い合わせください。 文京区の賃貸マンション・賃貸アパートはベステックスにおまかせください! | ||
| 所在階 | 間取り | 面積 | 賃料 | 管理費 | 敷金 | 礼金 | お問い合わせ | ||||
|---|---|---|---|---|---|---|---|---|---|---|---|
| 2階 | 1K | 23.07㎡ | … | … | … | … | 契約済み | 所在階*** 間取り1K |
面積23.07㎡ 管理費*** |
敷金*** 礼金*** |
契約済み |
| 2階 | 1K | 23.07㎡ | … | … | … | … | 契約済み | 所在階*** 間取り1K |
面積23.07㎡ 管理費*** |
敷金*** 礼金*** |
契約済み |
| 2階 | 1K | 25.77㎡ | … | … | … | … | 契約済み | 所在階*** 間取り1K |
面積25.77㎡ 管理費*** |
敷金*** 礼金*** |
契約済み |
| 2階 | 1K | 25.77㎡ | … | … | … | … | 契約済み | 所在階*** 間取り1K |
面積25.77㎡ 管理費*** |
敷金*** 礼金*** |
契約済み |
| 2階 | 1K | 22.43㎡ | … | … | … | … | 契約済み | 所在階*** 間取り1K |
面積22.43㎡ 管理費*** |
敷金*** 礼金*** |
契約済み |
| 3階 | 1K | 22.55㎡ | … | … | … | … | 契約済み | 所在階*** 間取り1K |
面積22.55㎡ 管理費*** |
敷金*** 礼金*** |
契約済み |
| 3階 | 1K | 23.07㎡ | … | … | … | … | 契約済み | 所在階*** 間取り1K |
面積23.07㎡ 管理費*** |
敷金*** 礼金*** |
契約済み |
| 3階 | 1K | 22.43㎡ | … | … | … | … | 契約済み | 所在階*** 間取り1K |
面積22.43㎡ 管理費*** |
敷金*** 礼金*** |
契約済み |
| 3階 | 1K | 25.77㎡ | … | … | … | … | 契約済み | 所在階*** 間取り1K |
面積25.77㎡ 管理費*** |
敷金*** 礼金*** |
契約済み |
| 4階 | 1K | 25.77㎡ | … | … | … | … | 契約済み | 所在階*** 間取り1K |
面積25.77㎡ 管理費*** |
敷金*** 礼金*** |
契約済み |
| 4階 | 1K | 25.77㎡ | … | … | … | … | 契約済み | 所在階*** 間取り1K |
面積25.77㎡ 管理費*** |
敷金*** 礼金*** |
契約済み |
| 4階 | 1K | 22.43㎡ | … | … | … | … | 契約済み | 所在階*** 間取り1K |
面積22.43㎡ 管理費*** |
敷金*** 礼金*** |
契約済み |
| 4階 | 1K | 22.55㎡ | … | … | … | … | 契約済み | 所在階*** 間取り1K |
面積22.55㎡ 管理費*** |
敷金*** 礼金*** |
契約済み |
| 5階 | 1K | 22.43㎡ | … | … | … | … | 契約済み | 所在階*** 間取り1K |
面積22.43㎡ 管理費*** |
敷金*** 礼金*** |
契約済み |
| 5階 | 1K | 22.43㎡ | … | … | … | … | 契約済み | 所在階*** 間取り1K |
面積22.43㎡ 管理費*** |
敷金*** 礼金*** |
契約済み |
| 5階 | 1K | 22.55㎡ | … | … | … | … | 契約済み | 所在階*** 間取り1K |
面積22.55㎡ 管理費*** |
敷金*** 礼金*** |
契約済み |
| 5階 | 1K | 25.77㎡ | … | … | … | … | 契約済み | 所在階*** 間取り1K |
面積25.77㎡ 管理費*** |
敷金*** 礼金*** |
契約済み |
| 5階 | 1K | 23.07㎡ | … | … | … | … | 契約済み | 所在階*** 間取り1K |
面積23.07㎡ 管理費*** |
敷金*** 礼金*** |
契約済み |
| 6階 | 1K | 25.77㎡ | … | … | … | … | 契約済み | 所在階*** 間取り1K |
面積25.77㎡ 管理費*** |
敷金*** 礼金*** |
契約済み |
| 6階 | 1K | 22.55㎡ | … | … | … | … | 契約済み | 所在階*** 間取り1K |
面積22.55㎡ 管理費*** |
敷金*** 礼金*** |
契約済み |
| 6階 | 1K | 23.07㎡ | … | … | … | … | 契約済み | 所在階*** 間取り1K |
面積23.07㎡ 管理費*** |
敷金*** 礼金*** |
契約済み |
| 6階 | 1K | 22.43㎡ | … | … | … | … | 契約済み | 所在階*** 間取り1K |
面積22.43㎡ 管理費*** |
敷金*** 礼金*** |
契約済み |
| 7階 | 1K | 22.43㎡ | … | … | … | … | 契約済み | 所在階*** 間取り1K |
面積22.43㎡ 管理費*** |
敷金*** 礼金*** |
契約済み |
| 7階 | 1K | 22.55㎡ | … | … | … | … | 契約済み | 所在階*** 間取り1K |
面積22.55㎡ 管理費*** |
敷金*** 礼金*** |
契約済み |
| 7階 | 1K | 23.07㎡ | … | … | … | … | 契約済み | 所在階*** 間取り1K |
面積23.07㎡ 管理費*** |
敷金*** 礼金*** |
契約済み |
| 8階 | 1K | 25.77㎡ | … | … | … | … | 契約済み | 所在階*** 間取り1K |
面積25.77㎡ 管理費*** |
敷金*** 礼金*** |
契約済み |
| 8階 | 1K | 22.55㎡ | … | … | … | … | 契約済み | 所在階*** 間取り1K |
面積22.55㎡ 管理費*** |
敷金*** 礼金*** |
契約済み |
| 8階 | 1K | 22.43㎡ | … | … | … | … | 契約済み | 所在階*** 間取り1K |
面積22.43㎡ 管理費*** |
敷金*** 礼金*** |
契約済み |
| 8階 | 1K | 23.07㎡ | … | … | … | … | 契約済み | 所在階*** 間取り1K |
面積23.07㎡ 管理費*** |
敷金*** 礼金*** |
契約済み |
| 9階 | 1K | 23.07㎡ | … | … | … | … | 契約済み | 所在階*** 間取り1K |
面積23.07㎡ 管理費*** |
敷金*** 礼金*** |
契約済み |
| 9階 | 1K | 22.55㎡ | … | … | … | … | 契約済み | 所在階*** 間取り1K |
面積22.55㎡ 管理費*** |
敷金*** 礼金*** |
契約済み |
| 9階 | 1K | 22.43㎡ | … | … | … | … | 契約済み | 所在階*** 間取り1K |
面積22.43㎡ 管理費*** |
敷金*** 礼金*** |
契約済み |
| 10階 | 1LDK | 48.32㎡ | … | … | … | … | 契約済み | 所在階*** 間取り1LDK |
面積48.32㎡ 管理費*** |
敷金*** 礼金*** |
契約済み |
| 10階 | 1LDK | 45.50㎡ | … | … | … | … | 契約済み | 所在階*** 間取り1LDK |
面積45.50㎡ 管理費*** |
敷金*** 礼金*** |
契約済み |
| 11階 | 1LDK | 45.50㎡ | … | … | … | … | 契約済み | 所在階*** 間取り1LDK |
面積45.50㎡ 管理費*** |
敷金*** 礼金*** |
契約済み |
| 11階 | 1LDK | 48.32㎡ | … | … | … | … | 契約済み | 所在階*** 間取り1LDK |
面積48.32㎡ 管理費*** |
敷金*** 礼金*** |
契約済み |
| 12階 | 1LDK | 45.50㎡ | … | … | … | … | 契約済み | 所在階*** 間取り1LDK |
面積45.50㎡ 管理費*** |
敷金*** 礼金*** |
契約済み |
| 12階 | 1LDK | 48.32㎡ | … | … | … | … | 契約済み | 所在階*** 間取り1LDK |
面積48.32㎡ 管理費*** |
敷金*** 礼金*** |
契約済み |