アーバネックス文京本郷
新着 01/27
賃料
258,000円
管理費
20,000円
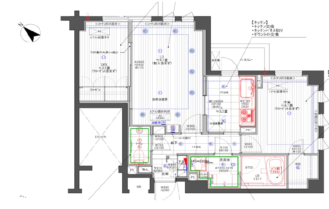
間取り
2LDK
| 所在地 | 文京区本郷2-19-10 | ||
|---|---|---|---|
| 交通 | 東京メトロ丸ノ内線 本郷三丁目駅 徒歩3分 都営大江戸線 本郷三丁目駅 徒歩4分 都営三田線 水道橋駅 徒歩6分 |
||
| 構造 | RC | 規模 | 地上10階建て |
| 築年数 | 2022年08月築 | 専有面積 | 40.54㎡ |



_id2074.webp)
















_id2888.webp)





.webp)




