マチュリティ小石川
新着 03/29
賃料
213,000円
管理費
10,000円
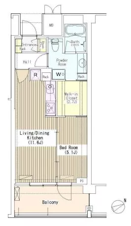
間取り
1LDK
| 所在地 | 東京都文京区春日2-12-3 | ||
|---|---|---|---|
| 交通 | 東京メトロ丸ノ内線 茗荷谷駅 徒歩11分 東京メトロ南北線 後楽園駅 徒歩11分 都営三田線 春日駅 徒歩11分 |
||
| 構造 | RC | 規模 | 地上5階建て |
| 築年数 | 2006年03月築 | 専有面積 | 44.88㎡ |

































































