グランドシティ白山
新着 10/27
賃料235,000円
管理費15,000円
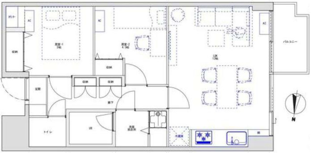
間取り2LDK
| 所在地 | 文京区白山1-32-8 | ||
|---|---|---|---|
| 交通 | 都営三田線 白山駅 徒歩1分 東京メトロ南北線 本駒込駅 徒歩6分 東京メトロ南北線 東大前駅 徒歩8分 |
||
| 構造 | SRC | 規模 | 地上13階建て |
| 築年数 | 1992年01月築 | 専有面積 | 53.31㎡ |
















