THE RESIDENCE
新着 01/26
賃料
175,000円
管理費
5,000円
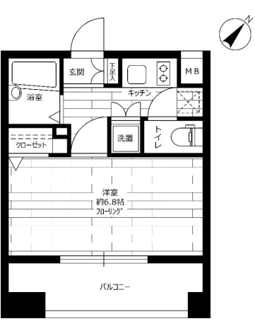
間取り
1LDK
| 所在地 | 東京都文京区本駒込1-25-2 | ||
|---|---|---|---|
| 交通 | 東京メトロ南北線 本駒込駅 徒歩4分 都営三田線 千石駅 徒歩8分 都営三田線 白山駅 徒歩8分 |
||
| 構造 | 鉄骨 | 規模 | 地上3階建て |
| 築年数 | 2010年08月築 | 専有面積 | 53.10㎡ |



.webp)









































