ラヴェンナ文京富坂 ~複数路線利用可能な好立地物件~
♥お気に入りラヴェンナ文京富坂 ~複数路線利用可能な好立地物件~
♥お気に入り






ラヴェンナ文京富坂 5階
賃料 要問合せ(※) 管理費 敷金 0ヶ月 礼金 1ヶ月 間取り 1LDK 面積 37.84㎡ 階数 5階 状態 要問合せ(※) 入居 相談 更新料 新賃料の1ヶ月 諸費用 取引態様 媒介 設備 オートロック、駐輪場有、宅配BOX、BS・CS、CATV、光ファイバー、インターネット対応、防犯カメラ、TVモニター付インターホン、東京大学自転車圏、エレベーター、礫川小学校エリア、2階以上、コンロ二口以上、ガスキッチン、システムキッチン、エアコン、フローリング、独立洗面台、追い焚き機能、浴室乾燥、ウォシュレット、バストイレ別、室内洗濯機置場、収納、礼金1以下、法人契約相談可 物件概要
物件名 ラヴェンナ文京富坂 所在地 東京都文京区春日1丁目5-6 最寄駅 東京メトロ丸ノ内線 後楽園駅 徒歩8分
東京メトロ南北線 後楽園駅 徒歩8分
都営大江戸線 春日駅 徒歩8分
学区 礫川小学校 構造 RC 階数 地上7階建て 築年月 2004年04月 駐車場 備考 【ラヴェンナ文京富坂】の賃貸マンション情報! 詳細閲覧ありがとうございます。最新の空室の確認、内覧のご予約はメール・電話にてお問い合わせください。 文京区の賃貸マンション・賃貸アパートはベステックスにおまかせください! 問合番号 10122-503 更新日 2022/06/30 このお部屋について
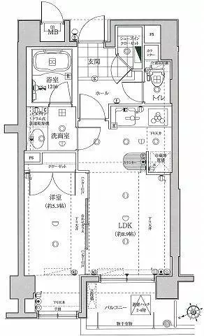
5階部分の1LDKタイプのお部屋です!
LDKは約8.9帖でリビングダイニングとキッチンとの間にはカウンターがございます。グリル付きの3口ガスコンロが備え付けられたシステムキッチンやドラム式洗濯機が備え付けられた洗面室、浴室換気乾燥機の付いたユニットバスなど充実した設備の水周りとなっております。トイレには温水洗浄便座を採用しております。ベッドルームは約5.3帖で大きめのクローゼットがついております。また、玄関にはシューズインクローゼットもございます!
便利な設備が充実♪お気軽にお問い合わせください♪
※掲載している写真は同物件の別のお部屋の写真です。掲載情報について
※随時更新を心がけておりますが、掲載している物件が万が一成約している場合もございますので予めご了承下さいませ。
※駐車場・駐輪場・バイク置場の空き状況についてはお問い合わせ下さい。
※ペット飼育やSOHO利用・楽器使用の可否に関しては、建物の管理規約で可能になっていても、お部屋の所有者様によって禁止の場合もございますので御注意下さい。
詳細はメールやお電話にてスタッフまでご相談下さい。ラヴェンナ文京富坂の周辺地図
似た条件の物件
最近見た物件












