パークアクシス御茶ノ水ステージ〜楽器可・ペット可・御茶ノ水駅徒歩8分
♥お気に入りパークアクシス御茶ノ水ステージ〜楽器可・ペット可・御茶ノ水駅徒歩8分
♥お気に入り










パークアクシス御茶ノ水ステージ 12階
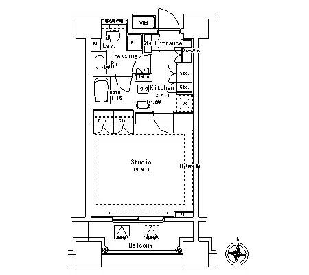
賃料 要問合せ(※) 管理費 敷金 1ヶ月 礼金 0ヶ月 間取り 1K 面積 33.48㎡ 階数 12階 状態 要問合せ(※) 入居 相談 更新料 新賃料の1ヶ月分 諸費用 取引態様 媒介 設備 デザイナーズ、フロントサービス有、オートロック、駐車場有、駐輪場有、宅配BOX、コンビニ近、BS・CS、CATV、光ファイバー、インターネット対応、専用ゴミ置場、防犯カメラ、TVモニター付インターホン、東京大学徒歩圏、ペット可、エレベーター、湯島小学校エリア、10階以上、南向き、コンロ二口以上、ガスキッチン、システムキッチン、ウォークインクローゼット、エアコン、フローリング、独立洗面台、追い焚き機能、浴室乾燥、ウォシュレット、バストイレ別、室内洗濯機置場、収納、楽器相談可、法人契約相談可 物件概要
物件名 パークアクシス御茶ノ水ステージ 所在地 東京都文京区湯島3-2-14 最寄駅 JR中央・総武線 御茶ノ水駅 徒歩8分
東京メトロ銀座線 末広町駅 徒歩6分
都営大江戸線 本郷三丁目駅 徒歩8分
学区 湯島小学校 構造 RC 階数 地上13階建て 地下2階 築年月 2006年02月 駐車場 有 ※要空確認 備考 文京区湯島3丁目に佇むペット対応築浅高級賃貸マンション【パークアクシス御茶ノ水ステージ】♪ ※写真は同マンション他タイプのものになります。 詳細閲覧ありがとうございます。最新の空室の確認、内覧のご予約はメール・電話にてお問い合わせください。 文京区の賃貸マンション・賃貸アパートはベステックスにおまかせください! 問合番号 2011191212 更新日 2022/04/22 このお部屋について
三井不動産が手掛ける高級デザイナーズマンションの【パークアクシスシリーズ】。今回はそのシリーズの、【パークアクシス御茶ノ水ステージ】のお部屋をご紹介します!
高級マンションシリーズということもあり、外観から共有部分、室内までオシャレで高級感が漂います♪
設備も充実で、オートロックとTVモニタ付きインターホンで防犯設備は万全。オプションでコンシェルジュもつくので、便利かつホテルライクな生活を送れること間違いナシ!
楽器もペットもOKなお部屋は、広々1K仕様。柱のない洋室は、7.1帖で家具の配置がしやすい間取りです!ピアノなどの大型楽器も、無理なく置くことができます♪ペットは猫が不可となりますが、小型犬2匹までなら飼育OKです!
キッチンはゆとりのある2.4帖。2口ガスコンロのシステムキッチンは、お料理も捗ります!
12階と高層階のお部屋ですが、ベランダの向いには物件があるので眺めはイマイチ。。。ただ道路を挟んでいるため、圧迫感はそれほどありませんよ♪
御茶ノ水駅徒歩8分とアクセスも良好。ほかにも末広町駅や本郷三丁目駅とも近いため、通勤にも通学にも便利な立地。都心で音楽をやりたい!ペットを飼いたい!といった方にはうってつけのお部屋です♪掲載情報について
※随時更新を心がけておりますが、掲載している物件が万が一成約している場合もございますので予めご了承下さいませ。
※駐車場・駐輪場・バイク置場の空き状況についてはお問い合わせ下さい。
※ペット飼育やSOHO利用・楽器使用の可否に関しては、建物の管理規約で可能になっていても、お部屋の所有者様によって禁止の場合もございますので御注意下さい。
詳細はメールやお電話にてスタッフまでご相談下さい。パークアクシス御茶ノ水ステージの周辺地図
似た条件の物件
最近見た物件















