Brisa本郷真砂
♥お気に入りBrisa本郷真砂
♥お気に入り
Brisa本郷真砂 6階
| 賃料 | 要問合せ(※) | 管理費 | |
|---|---|---|---|
| 敷金 | 1ヶ月 | 礼金 | 1ヶ月 |
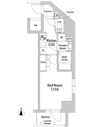
| 間取り | 1K | 面積 | 25.87㎡ |
| 階数 | 6階 | 状態 | 要問合せ(※) |
| 入居 | 2月中旬 | 更新料 | 新賃料の1カ月分 |
| 諸費用 | 取引態様 | 媒介 | |
| 設備 | 新築、オートロック、バイク置場有、駐輪場有、宅配BOX、コンビニ近、BS・CS、防犯カメラ、東京大学徒歩圏、エレベーター、本郷小学校エリア、2階以上、南向き、二面採光、コンロ二口以上、システムキッチン、エアコン、フローリング、独立洗面台、追い焚き機能、24時間換気システム、バストイレ別、室内洗濯機置場、収納、角部屋、礼金1以下、法人契約相談可 | ||
物件概要
| 物件名 | Brisa本郷真砂 | ||
|---|---|---|---|
| 所在地 | 東京都文京区本郷4-7-2 | ||
| 最寄駅 |
東京メトロ丸ノ内線 本郷三丁目駅 徒歩5分 都営三田線 春日駅 徒歩6分 東京メトロ南北線 後楽園駅 徒歩8分 |
||
| 学区 | 本郷小学校 | 構造 | RC |
| 階数 | 地上11階建て | 築年月 | 2016年02月 |
| 駐車場 | なし | ||
| 備考 | 詳細閲覧ありがとうございます。最新の空室の確認、内覧のご予約はメール・電話にてお問い合わせください。 文京区の賃貸マンション・賃貸アパートはベステックスにおまかせください! | ||
| 問合番号 | 9078 | ||
| 更新日 | 2015/12/26 | ||
このお部屋について
文京区本郷4丁目にある新築賃貸マンション【Brisa本郷真砂】の6階、1Kタイプのお部屋のご紹介です。
キッチンは2口コンロが備わったシステムキッチンがあり、料理の際に快適に作業を行うことができるでしょう。キッチンの横には冷蔵庫置き場が完備されています。
収納は調理器具をたくさんお持ちの方でも安心してお使い頂ける収納力!
居室は約7.3帖の広さが二面採光になっております。
二面採光により外からの光を多く室内に取り込むことができるのでお部屋に明るい印象を与えます。
また通気性がよく、お部屋の中に風を通すことができるため換気の際に大変役立ちます。
収納を衣類や家具家電の収納に活用することでお部屋をより大きく使うことも可能!
バス・トイレは別々で独立空間が確保されております。追炊き機能が備わったバスはいつでも暖かいお風呂に入ることを可能にします。
身支度や手洗いなど生活の中の様々なシーンで役立つ独立洗面台を完備!
パウダールームは脱衣所としてもご利用頂けます。
是非一度【Brisa本郷真砂】をご覧ください!
キッチンは2口コンロが備わったシステムキッチンがあり、料理の際に快適に作業を行うことができるでしょう。キッチンの横には冷蔵庫置き場が完備されています。
収納は調理器具をたくさんお持ちの方でも安心してお使い頂ける収納力!
居室は約7.3帖の広さが二面採光になっております。
二面採光により外からの光を多く室内に取り込むことができるのでお部屋に明るい印象を与えます。
また通気性がよく、お部屋の中に風を通すことができるため換気の際に大変役立ちます。
収納を衣類や家具家電の収納に活用することでお部屋をより大きく使うことも可能!
バス・トイレは別々で独立空間が確保されております。追炊き機能が備わったバスはいつでも暖かいお風呂に入ることを可能にします。
身支度や手洗いなど生活の中の様々なシーンで役立つ独立洗面台を完備!
パウダールームは脱衣所としてもご利用頂けます。
是非一度【Brisa本郷真砂】をご覧ください!
掲載情報について
※随時更新を心がけておりますが、掲載している物件が万が一成約している場合もございますので予めご了承下さいませ。
※駐車場・駐輪場・バイク置場の空き状況についてはお問い合わせ下さい。
※ペット飼育やSOHO利用・楽器使用の可否に関しては、建物の管理規約で可能になっていても、お部屋の所有者様によって禁止の場合もございますので御注意下さい。
詳細はメールやお電話にてスタッフまでご相談下さい。
※駐車場・駐輪場・バイク置場の空き状況についてはお問い合わせ下さい。
※ペット飼育やSOHO利用・楽器使用の可否に関しては、建物の管理規約で可能になっていても、お部屋の所有者様によって禁止の場合もございますので御注意下さい。
詳細はメールやお電話にてスタッフまでご相談下さい。







