インペリアルヒルズ白山の賃貸情報
04/12インペリアルヒルズ白山の賃貸情報
04/12
インペリアルヒルズ白山の総合評価
総合評価
3.5
3.5
| セキュリティ | : |
築年数 | : |
| 建物設備 | : |
駅徒歩 | : |
| セキュリティ: | |
| 建物設備: | |
| 築年数: | |
| 駅徒歩: |
この物件について
| 物件名 | インペリアルヒルズ白山 | ||
|---|---|---|---|
| 住所 | 東京都文京区白山5-31-25 | ||
| 最寄駅 |
都営三田線 白山駅 徒歩1分 東京メトロ南北線 本駒込駅 徒歩8分 東京メトロ南北線 東大前駅 徒歩12分 |
||
| 学区 | 指ケ谷小学校 | ||
| 構造 | RC | 総階数 | 地上5階建て |
| 賃料 | 78,000円 | 管理費 | 0円 |
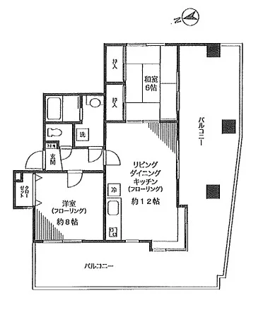
| 間取り | 1K | 面積 | 20.00㎡ |
| 駐車場 | 月額28,000円(要空き確認) | 築年月 | 1993年02月 |
| 問合番号 | 674587 | 更新日 | 2026/04/12 |
| 設備 | オートロック、法人契約相談可、駐車場有、コンビニ近、インターネット対応、エレベーター、指ケ谷小学校エリア、2階以上、日当たり良好、コンロ二口以上、ガスキッチン、フローリング、独立洗面台、バストイレ別、室内洗濯機置場、収納、保証会社利用 | ||
| 備考 | 【インペリアルヒルズ白山】の賃貸マンション情報♪ 詳細閲覧ありがとうございます。最新の空室の確認、内覧のご予約はメール・電話にてお問い合わせください。 文京区の賃貸マンション・賃貸アパートはベステックスにおまかせください! | ||
物件概要
白山5丁目、白山神社の隣に佇む賃貸マンション【インペリアルヒルズ白山】のご紹介です。
◇アクセス◇
都営三田線 白山駅 徒歩4分
東京メトロ南北線 本駒込駅 徒歩6分
東京メトロ南北線 東大前駅 徒歩12分
5分圏内で2駅利用できるととても便利ですね♪
◇周辺環境◇
※直線距離
【スーパー】
コープ白山店 171m
Santoku白山店 196m
まいばすけっと本駒込駅前店 294m
【コンビニ】
ローソンストア100白山駅前店 107m
セブンイレブン文京白山駅前店 144m
【ドラッグストア】
くすりの福太郎白山店 116m
ドラッグストアいわい白山店 128m
くすりセイジョー白山店 145m
【飲食店】
フレッシュネスバーガー白山駅前店 137m
マクドナルド白山駅前店 137m
CoCo壱番屋文京区白山駅前店 164m
【教育機関】
私立東洋大学 212m
私立日本医科大学 632m
私立文京学院大学 640m
私立京華女子中学校 382m
文京区立指ケ谷小学校 470m
【その他】
文京白山上郵便局 139m
三井住友銀行白山支店 346m
北陸銀行白山支店 170m
瀧野川信用金庫白山支店 246m
白山駅は周辺環境充実!
スーパーやコンビニはもちろん、飲食店もたくさんあります♪
◇共用設備◇
オートロック
光ケーブル
エレベーター
駐輪場
◇アクセス◇
都営三田線 白山駅 徒歩4分
東京メトロ南北線 本駒込駅 徒歩6分
東京メトロ南北線 東大前駅 徒歩12分
5分圏内で2駅利用できるととても便利ですね♪
◇周辺環境◇
※直線距離
【スーパー】
コープ白山店 171m
Santoku白山店 196m
まいばすけっと本駒込駅前店 294m
【コンビニ】
ローソンストア100白山駅前店 107m
セブンイレブン文京白山駅前店 144m
【ドラッグストア】
くすりの福太郎白山店 116m
ドラッグストアいわい白山店 128m
くすりセイジョー白山店 145m
【飲食店】
フレッシュネスバーガー白山駅前店 137m
マクドナルド白山駅前店 137m
CoCo壱番屋文京区白山駅前店 164m
【教育機関】
私立東洋大学 212m
私立日本医科大学 632m
私立文京学院大学 640m
私立京華女子中学校 382m
文京区立指ケ谷小学校 470m
【その他】
文京白山上郵便局 139m
三井住友銀行白山支店 346m
北陸銀行白山支店 170m
瀧野川信用金庫白山支店 246m
白山駅は周辺環境充実!
スーパーやコンビニはもちろん、飲食店もたくさんあります♪
◇共用設備◇
オートロック
光ケーブル
エレベーター
駐輪場
掲載情報について
※随時更新を心がけておりますが、掲載している物件が万が一成約している場合もございますので予めご了承下さいませ。
※駐車場・駐輪場・バイク置場の空き状況についてはお問い合わせ下さい。
※ペット飼育やSOHO利用・楽器使用の可否に関しては、建物の管理規約で可能になっていても、お部屋の所有者様によって禁止の場合もございますので御注意下さい。
詳細はメールやお電話にてスタッフまでご相談下さい。
※駐車場・駐輪場・バイク置場の空き状況についてはお問い合わせ下さい。
※ペット飼育やSOHO利用・楽器使用の可否に関しては、建物の管理規約で可能になっていても、お部屋の所有者様によって禁止の場合もございますので御注意下さい。
詳細はメールやお電話にてスタッフまでご相談下さい。
インペリアルヒルズ白山の周辺地図
インペリアルヒルズ白山のご成約済み部屋一覧
| 所在階 | 間取り | 面積 | 賃料 | 管理費 | 敷金 | 礼金 | お問い合わせ | ||||
|---|---|---|---|---|---|---|---|---|---|---|---|
| 2階 | 1K | 21.00㎡ | … | … | … | … | 契約済み | 所在階*** 間取り1K |
面積21.00㎡ 管理費*** |
敷金*** 礼金*** |
契約済み |
| 2階 | 1K | 20.00㎡ | … | … | … | … | 契約済み | 所在階*** 間取り1K |
面積20.00㎡ 管理費*** |
敷金*** 礼金*** |
契約済み |
| 2階 | 2LDK | 56.18㎡ | … | … | … | … | 契約済み | 所在階*** 間取り2LDK |
面積56.18㎡ 管理費*** |
敷金*** 礼金*** |
契約済み |
| 3階 | 2LDK | 56.00㎡ | … | … | … | … | 契約済み | 所在階*** 間取り2LDK |
面積56.00㎡ 管理費*** |
敷金*** 礼金*** |
契約済み |
| 4階 | 1K | 21.00㎡ | … | … | … | … | 契約済み | 所在階*** 間取り1K |
面積21.00㎡ 管理費*** |
敷金*** 礼金*** |
契約済み |
| 4階 | 2LDK | 52.89㎡ | … | … | … | … | 契約済み | 所在階*** 間取り2LDK |
面積52.89㎡ 管理費*** |
敷金*** 礼金*** |
契約済み |



















物件お隣には白山神社がございます...! 駅には近いですがとても閑静な住宅街にございます◎
共用部オートロックが完備しておりますのでセキュリティ面は安心です。
駅近ながら閑静な場所にございます当物件、募集が出ていましたら是非お早めにおといあわせください!!