マチュリティ小石川
♥お気に入りマチュリティ小石川
♥お気に入り
マチュリティ小石川 1階
| 賃料 | 要問合せ(※) | 管理費 | |
|---|---|---|---|
| 敷金 | 2ヶ月 | 礼金 | 1ヶ月 |
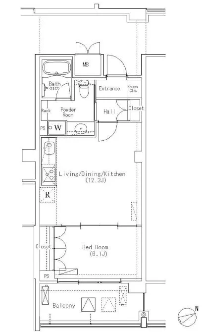
| 間取り | 1LDK | 面積 | 44.95㎡ |
| 階数 | 1階 | 状態 | 要問合せ(※) |
| 入居 | 相談 | 更新料 | 新賃料の1ヶ月分 |
| 諸費用 | 取引態様 | 媒介 | |
| 設備 | フロントサービス有、オートロック、バイク置場有、法人契約相談可、駐車場有、駐輪場有、宅配BOX、低層マンション、BS・CS、CATV、光ファイバー、インターネット対応、専用ゴミ置場、防犯カメラ、TVモニター付インターホン、ペット可、エレベーター、金富小学校エリア、1階、コンロ二口以上、IHキッチン、システムキッチン、エアコン、フローリング、独立洗面台、追い焚き機能、浴室乾燥、トランクルーム、バストイレ別、室内洗濯機置場、収納、2人入居可、保証会社利用、楽器相談可 | ||
物件概要
| 物件名 | マチュリティ小石川 | ||
|---|---|---|---|
| 所在地 | 東京都文京区春日2-12-3 | ||
| 最寄駅 |
東京メトロ丸ノ内線 茗荷谷駅 徒歩11分 東京メトロ南北線 後楽園駅 徒歩11分 都営三田線 春日駅 徒歩11分 |
||
| 学区 | 金富小学校 | 構造 | RC |
| 階数 | 地上5階建て | 築年月 | 2006年03月 |
| 駐車場 | 駐車場要確認 | ||
| 備考 | ◇保証会社利用必須 ・初回:50% ・年間:10,000円 ◇入居時鍵交換費用:22,000円 ◇口座振替事務手数料:110円/月 ◇退去時室内清掃費用:59,334円 ◇ピアノ相談可 ◇ペット相談可(敷金1ヶ月積み増し) ◇1年未満解約で違約金あり 詳細閲覧ありがとうございます。最新の空室の確認、内覧のご予約はメール・電話にてお問い合わせください。 文京区の賃貸マンション・賃貸アパートはベステックスにおまかせください! | ||
| 問合番号 | 13244-112 | ||
| 更新日 | 2024/09/14 | ||
このお部屋について
文京区春日2丁目にある【マチュリティ小石川】の1階・44.95㎡・1LDKタイプのお部屋です。
ペット・ピアノが相談が可能になっております。
(ペットは小型犬・猫2匹まで相談可)
約12.3帖のリビングダイニングキッチンは十分な広さで、家具の配置がしやすく、使い勝手良好です。床暖房も付いており、冬の底冷えとは無縁の暖かい生活を送れます。
キッチンは3口のシステムIHキッチンで、調理スペース・食器収納スペースもばっちり完備!充実した家事を手助けします。
約6.1帖のベッドルームも使い勝手良好な間取りで、横に広いクローゼットを完備!収納力抜群です。
~気になる水周り~
バス・トイレ・洗面台はすべて独立タイプとなっております。
洗面台のあるパウダールームは忙しい朝も、お休みになる前にも、毎日の生活にあると役に立つこと間違いなし。
追焚機能も付いている為、シャワーだけでなく、たまにはお湯に浸かり疲れをとりたい!
生活がバラバラだが、いつもあったかいお風呂に入りたい!という方には嬉しい設備です。
※室内写真は同物件別部屋のものになります。
ペット・ピアノが相談が可能になっております。
(ペットは小型犬・猫2匹まで相談可)
約12.3帖のリビングダイニングキッチンは十分な広さで、家具の配置がしやすく、使い勝手良好です。床暖房も付いており、冬の底冷えとは無縁の暖かい生活を送れます。
キッチンは3口のシステムIHキッチンで、調理スペース・食器収納スペースもばっちり完備!充実した家事を手助けします。
約6.1帖のベッドルームも使い勝手良好な間取りで、横に広いクローゼットを完備!収納力抜群です。
~気になる水周り~
バス・トイレ・洗面台はすべて独立タイプとなっております。
洗面台のあるパウダールームは忙しい朝も、お休みになる前にも、毎日の生活にあると役に立つこと間違いなし。
追焚機能も付いている為、シャワーだけでなく、たまにはお湯に浸かり疲れをとりたい!
生活がバラバラだが、いつもあったかいお風呂に入りたい!という方には嬉しい設備です。
※室内写真は同物件別部屋のものになります。
| 間取図 | 所在階 | 間取り | 面積 | 賃料 | 管理費 | 敷金 | 礼金 | ||||
|---|---|---|---|---|---|---|---|---|---|---|---|
![]() |
2階 | 1LDK | 54.93㎡ | 256,000円 | 10,000円 | 1ヶ月 | 1ヶ月 |
所在階2階 面積54.93㎡ 間取り1LDK 賃料 256,000円
|
管理費10,000円 敷金1ヶ月 礼金1ヶ月 |
♥ お問い合わせ
|
♥お気に入り お問い合わせ |
![]() |
4階 | 1LDK | 54.93㎡ | 260,000円 | 10,000円 | 1ヶ月 | 1ヶ月 |
所在階4階 面積54.93㎡ 間取り1LDK 賃料 260,000円
|
管理費10,000円 敷金1ヶ月 礼金1ヶ月 |
♥ お問い合わせ
|
♥お気に入り お問い合わせ |
![]() |
5階 | 2LDK | 54.93㎡ | 385,000円 | 10,000円 | 1ヶ月 | 1ヶ月 |
所在階5階 面積54.93㎡ 間取り2LDK 賃料 385,000円
|
管理費10,000円 敷金1ヶ月 礼金1ヶ月 |
♥ お問い合わせ
|
♥お気に入り お問い合わせ |
掲載情報について
※随時更新を心がけておりますが、掲載している物件が万が一成約している場合もございますので予めご了承下さいませ。
※駐車場・駐輪場・バイク置場の空き状況についてはお問い合わせ下さい。
※ペット飼育やSOHO利用・楽器使用の可否に関しては、建物の管理規約で可能になっていても、お部屋の所有者様によって禁止の場合もございますので御注意下さい。
詳細はメールやお電話にてスタッフまでご相談下さい。
※駐車場・駐輪場・バイク置場の空き状況についてはお問い合わせ下さい。
※ペット飼育やSOHO利用・楽器使用の可否に関しては、建物の管理規約で可能になっていても、お部屋の所有者様によって禁止の場合もございますので御注意下さい。
詳細はメールやお電話にてスタッフまでご相談下さい。








