パークアクシス御茶ノ水ステージ〜楽器可・ペット可・御茶ノ水駅徒歩8分
♥お気に入りパークアクシス御茶ノ水ステージ〜楽器可・ペット可・御茶ノ水駅徒歩8分
♥お気に入り










パークアクシス御茶ノ水ステージ 10階
賃料 要問合せ(※) 管理費 敷金 1ヶ月 礼金 1ヶ月 間取り 1LDK 面積 41.39㎡ 階数 10階 状態 要問合せ(※) 入居 2018年12月下旬 更新料 新賃料の1ヶ月分 諸費用 取引態様 媒介 設備 デザイナーズ、フロントサービス有、オートロック、駐車場有、駐輪場有、宅配BOX、コンビニ近、BS・CS、CATV、光ファイバー、インターネット対応、専用ゴミ置場、防犯カメラ、TVモニター付インターホン、分譲賃貸、東京大学徒歩圏、ペット可、エレベーター、湯島小学校エリア、10階以上、南向き、日当たり良好、コンロ二口以上、ガスキッチン、システムキッチン、エアコン、フローリング、独立洗面台、追い焚き機能、浴室乾燥、ウォシュレット、バストイレ別、室内洗濯機置場、床暖房、収納、2人入居可、楽器相談可、法人契約相談可 物件概要
物件名 パークアクシス御茶ノ水ステージ 所在地 東京都文京区湯島3-2-14 最寄駅 JR中央・総武線 御茶ノ水駅 徒歩8分
東京メトロ銀座線 末広町駅 徒歩6分
都営大江戸線 本郷三丁目駅 徒歩8分
学区 湯島小学校 構造 RC 階数 地上13階建て 地下2階 築年月 2006年02月 駐車場 有 ※要空確認 備考 パークアクシス御茶ノ水ステージの賃貸マンション情報です♪ 詳細閲覧ありがとうございます。最新の空室の確認、内覧のご予約はメール・電話にてお問い合わせください。 文京区の賃貸マンション・賃貸アパートはベステックスにおまかせください! 問合番号 2413 更新日 2018/12/04 このお部屋について
御茶ノ水駅徒歩8分!秋葉原駅10分!湯島駅5分!末広町駅6分!
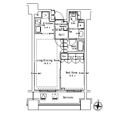
高級マンション【パークアクシス御茶ノ水ステージ】より、10階の1LDKタイプをご紹介します。
ピアノも、ペット飼育も相談可能物件です☆
リビング・ダイニングルームは10帖広さで、無駄のないスペースですので家具や電化製品の配置もスムースです!
この居室のみ、床暖房が設置されてます♪
南向きのバルコニーから明るさも開放感を演出してくれます。
隣接するベッドルームは5帖で、こちらもゆとりのある空間です。
収納がたっぷりあるので、無駄のない空間設計ができます♪
こちらも南向きのバルコニーからの採光を取り込む設計になってます。
キッチンは2.8帖のスペースで、冷蔵庫置き場もあります。
ガス2口のシステムキッチンで、使い勝手も良いキッチンです♪
バスルーム、トイレのセパレートは当然!
バスルームの追い炊き機能、浴室乾燥機も当然、完備されてます!
トイレは、もちろんシャワートイレです。
ドレッシングルームには洗濯機置場、独立洗面台が備わってます!
オートロック遠隔開錠システム導入の【パークアクシス御茶ノ水ステージ】ですから、
お買い物の帰りなども、スムースにエントランスに入れるから便利です♪
ご内覧、ご相談など、お気軽にご連絡ください♪
文京区なら任せて安心、ベステックス掲載情報について
※随時更新を心がけておりますが、掲載している物件が万が一成約している場合もございますので予めご了承下さいませ。
※駐車場・駐輪場・バイク置場の空き状況についてはお問い合わせ下さい。
※ペット飼育やSOHO利用・楽器使用の可否に関しては、建物の管理規約で可能になっていても、お部屋の所有者様によって禁止の場合もございますので御注意下さい。
詳細はメールやお電話にてスタッフまでご相談下さい。パークアクシス御茶ノ水ステージの周辺地図
似た条件の物件
最近見た物件

















