スタッフのコメント
宮城侑佑
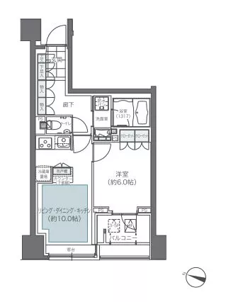
文京区本郷2丁目に佇む高級賃貸マンション『メゾンカルム本郷』♪丸ノ内線・大江戸線本郷三丁目駅徒歩3分の好立地♪2010年2月築の鉄筋コンクリート造地上14階建て高級賃貸マンション♪高級賃貸マンションならではのハイグレード仕様・設備♪オートロック・TVモニター付インターフォンはもちろん管理人常駐で安心セキュリティ♪24時間コールセンター、フロントサービス(コンシェルジュサービス)、エレベーター(2基)、宅配ボックス、駐輪場、駐車場、敷地内ゴミ捨て場、電話回線2本以上、インターネット専用線有(光ファイバー)、24時間換気システム、ガス3口システムキッチン、追焚き給湯、ウォシュレット、独立洗面台、室内洗濯機置場、浴室換気乾燥機・・・是非ご覧下さい!






































