スカイコートパレス後楽園 ~好立地高級分譲マンション~
♥お気に入りスカイコートパレス後楽園 ~好立地高級分譲マンション~
♥お気に入り










スカイコートパレス後楽園 4階
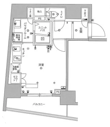
賃料 要問合せ(※) 管理費 敷金 1ヶ月 礼金 1ヶ月 間取り 1R 面積 26.51㎡ 階数 4階 状態 要問合せ(※) 入居 相談 更新料 新賃料の1ヶ月分+更新事務手数料0.5ヶ月 諸費用 取引態様 媒介 設備 オートロック、駐輪場有、宅配BOX、コンビニ近、BS・CS、光ファイバー、専用ゴミ置場、防犯カメラ、TVモニター付インターホン、分譲賃貸、東京大学自転車圏、エレベーター、柳町小学校エリア、2階以上、コンロ二口以上、ガスキッチン、システムキッチン、ウォークインクローゼット、エアコン、フローリング、独立洗面台、追い焚き機能、浴室乾燥、ウォシュレット、バストイレ別、室内洗濯機置場、収納、法人契約相談可 物件概要
物件名 スカイコートパレス後楽園 所在地 東京都文京区小石川1-13-13 最寄駅 都営三田線 春日駅 徒歩6分
東京メトロ丸ノ内線 後楽園駅 徒歩10分
東京メトロ南北線 東大前駅 徒歩15分
学区 柳町小学校 構造 SRC 階数 地上11階建て 築年月 2012年03月 駐車場 無 備考 【スカイコートパレス後楽園】の賃貸情報です。 ※写真は同マンション他タイプのものになります。 詳細閲覧ありがとうございます。最新の空室の確認、内覧のご予約はメール・電話にてお問い合わせください。 文京区の賃貸マンション・賃貸アパートはベステックスにおまかせください! 問合番号 10231-403 更新日 2022/07/12 このお部屋について
4階の25.38㎡・1Rのご紹介です!
~ここがポイント♪~
①大人気の独立洗面台完備!
②システムキッチン2口ガスコンロ!お料理が捗ります♪
③玄関口には人感センサー付きライト★
【スカイコートパレス後楽園】を是非一度ご覧ください。
※写真は同マンション他タイプのものになります。掲載情報について
※随時更新を心がけておりますが、掲載している物件が万が一成約している場合もございますので予めご了承下さいませ。
※駐車場・駐輪場・バイク置場の空き状況についてはお問い合わせ下さい。
※ペット飼育やSOHO利用・楽器使用の可否に関しては、建物の管理規約で可能になっていても、お部屋の所有者様によって禁止の場合もございますので御注意下さい。
詳細はメールやお電話にてスタッフまでご相談下さい。スカイコートパレス後楽園の周辺地図
似た条件の物件
最近見た物件















