パークアクシス文京ステージ
♥お気に入りパークアクシス文京ステージ
♥お気に入り

洋室1

洋室2

収納

キッチン

独立洗面台

浴室









パークアクシス文京ステージ 7階
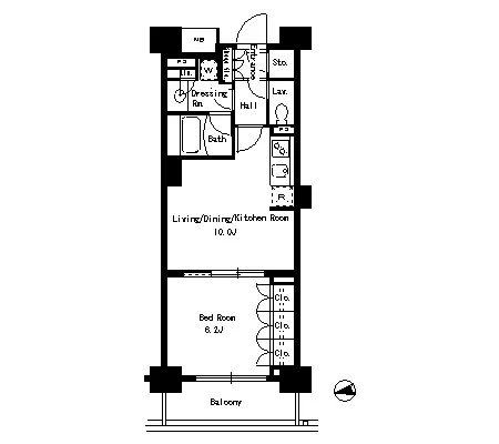
賃料 要問合せ(※) 管理費 敷金 1ヶ月 礼金 0ヶ月 間取り 1LDK 面積 38.34㎡ 階数 7階 状態 要問合せ(※) 入居 相談 更新料 新賃料の1ヵ月分 諸費用 取引態様 媒介 設備 オートロック、法人契約相談可、駐車場有、駐輪場有、宅配BOX、BS・CS、CATV、光ファイバー、インターネット対応、専用ゴミ置場、防犯カメラ、TVモニター付インターホン、ペット可、エレベーター、金富小学校エリア、2階以上、コンロ二口以上、ガスキッチン、システムキッチン、エアコン、フローリング、独立洗面台、追い焚き機能、浴室乾燥、バストイレ別、室内洗濯機置場、収納、礼金1以下、2人入居可、楽器相談可 物件概要
物件名 パークアクシス文京ステージ 所在地 東京都文京区水道2-4-12 最寄駅 東京メトロ有楽町線 江戸川橋駅 徒歩5分
東京メトロ東西線 神楽坂駅 徒歩10分
東京メトロ丸ノ内線 茗荷谷駅 徒歩13分
学区 金富小学校 構造 RC 階数 地上11階建て 築年月 2005年09月 駐車場 有(条件相談) 備考 パークアクシス文京ステージの賃貸マンション情報です♪ ペット可・ピアノ相談♪ 詳細閲覧ありがとうございます。最新の空室の確認、内覧のご予約はメール・電話にてお問い合わせください。 文京区の賃貸マンション・賃貸アパートはベステックスにおまかせください! 問合番号 63535326-702 更新日 2022/12/25 このお部屋について
7階、38.34㎡、1LDKのお部屋のご紹介!
~~ここがポイント~~
①約10帖の広さリビング!
②収納スペース豊富な洋室!
③追い焚き・浴室乾燥機付きのお風呂!
気になった方は是非お問い合わせくださいませ。掲載情報について
※随時更新を心がけておりますが、掲載している物件が万が一成約している場合もございますので予めご了承下さいませ。
※駐車場・駐輪場・バイク置場の空き状況についてはお問い合わせ下さい。
※ペット飼育やSOHO利用・楽器使用の可否に関しては、建物の管理規約で可能になっていても、お部屋の所有者様によって禁止の場合もございますので御注意下さい。
詳細はメールやお電話にてスタッフまでご相談下さい。パークアクシス文京ステージの周辺地図
似た条件の物件
最近見た物件



















_id2636.webp)


