パークアクシス文京ステージ
♥お気に入りパークアクシス文京ステージ
♥お気に入り

洋室1

洋室2

収納

キッチン

独立洗面台

浴室








パークアクシス文京ステージ 1階
賃料 要問合せ(※) 管理費 敷金 1ヶ月 礼金 1ヶ月 間取り 1DK 面積 30.87㎡ 階数 1階 状態 要問合せ(※) 入居 相談 更新料 新賃料の1ヵ月分 諸費用 取引態様 媒介 設備 オートロック、法人契約相談可、駐車場有、駐輪場有、宅配BOX、コンビニ近、BS・CS、CATV、光ファイバー、インターネット対応、専用ゴミ置場、防犯カメラ、TVモニター付インターホン、東京大学自転車圏、ペット可、エレベーター、金富小学校エリア、1階、コンロ二口以上、ガスキッチン、システムキッチン、エアコン、フローリング、独立洗面台、追い焚き機能、浴室乾燥、バストイレ別、室内洗濯機置場、収納、礼金1以下、楽器相談可
物件概要
物件名 パークアクシス文京ステージ 所在地 東京都文京区水道2-4-12 最寄駅 東京メトロ有楽町線 江戸川橋駅 徒歩5分
東京メトロ東西線 神楽坂駅 徒歩10分
東京メトロ丸ノ内線 茗荷谷駅 徒歩13分
学区 金富小学校 構造 RC 階数 地上11階建て 築年月 2005年09月 駐車場 有(条件相談) 備考 ◆[保証会社]加入要[保証会社名]レジデントアシスタンス株式会社[保証会社利用料]初回保証委託料(最低20,000円):月額賃料等の50%、 2年目以降:9,600円/年 ◆鍵交換費用:16,500円 ◆室内清掃費用:46,200円 ◆口座振替事務手数料:110円 ◆1年未満解約違約金有 ◆ペット飼育可(小型犬2匹迄/猫不可)敷金1積増 ◆駐輪ステッカー発行手数料:2,200円 ◆ 詳細閲覧ありがとうございます。最新の空室の確認、内覧のご予約はメール・電話にてお問い合わせください。 文京区の賃貸マンション・賃貸アパートはベステックスにおまかせください! 問合番号 63535326-116 更新日 2024/07/28 このお部屋について
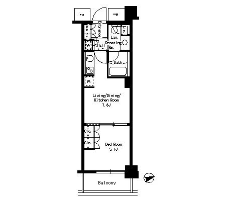
1階部分で、30.87㎡の1DKタイプのお部屋のご紹介です。
~ここがおススメポイント~
①追い焚き、浴室乾燥と充実したバスルーム設備が御座います。
②広さ7.8帖のDKと5.1帖の洋室は仕切りを開けておくことで開放感のある空間を演出☆
③ペット、楽器相談可能です♪
気になった方は是非お問い合わせください。掲載情報について
※随時更新を心がけておりますが、掲載している物件が万が一成約している場合もございますので予めご了承下さいませ。
※駐車場・駐輪場・バイク置場の空き状況についてはお問い合わせ下さい。
※ペット飼育やSOHO利用・楽器使用の可否に関しては、建物の管理規約で可能になっていても、お部屋の所有者様によって禁止の場合もございますので御注意下さい。
詳細はメールやお電話にてスタッフまでご相談下さい。パークアクシス文京ステージの周辺地図
似た条件の物件
最近見た物件






















本物件は1階部分でしてエントランスと逆側のため通りには面しておりません。
東向きバルコニーとなっております。
小ぶりではございますが30㎡越えのため2名入居可!
DKは約7.8帖でして使いやすいお部屋のかたちとなっております。
2口コンロでしてキッチンスペースもしっかりとれております。
独立洗面台もございまして追い炊き機能・浴室乾燥機完備!
トイレはシャワートイレとなっております。
洗濯機は扉付き!
またペット可・ピアノ相談可!!!
ぜひお問い合わせくださいませ。