アイル文京音羽
♥お気に入りアイル文京音羽
♥お気に入り








アイル文京音羽 9階
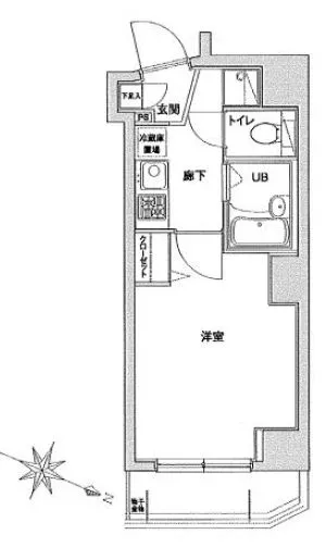
賃料 要問合せ(※) 管理費 敷金 1ヶ月 礼金 1ヶ月 間取り 1K 面積 21.84㎡ 階数 9階 状態 要問合せ(※) 入居 即入居可能 更新料 新賃料の1.5ヶ月分 諸費用 取引態様 媒介 設備 オートロック、宅配BOX、コンビニ近、光ファイバー、インターネット対応、TVモニター付インターホン、エレベーター、関口台町小学校エリア、ガスキッチン、システムキッチン、エアコン、フローリング、バストイレ別、室内洗濯機置場、収納、角部屋、法人契約相談可 物件概要
物件名 アイル文京音羽 所在地 文京区音羽1-25-13 最寄駅 東京メトロ有楽町線 江戸川橋駅 徒歩2分
東京メトロ丸ノ内線 茗荷谷駅 徒歩8分
学区 関口台町小学校 構造 RC 階数 地上11階建て 築年月 2004年02月 駐車場 なし 備考 【アイル文京音羽】の賃貸マンション情報です。【株式会社ベステックス】詳細閲覧ありがとうございます。※住戸により、契約内容等が異なる場合、現況優先となります。 問合番号 04232 更新日 2012/04/23 このお部屋について
【アイル文京音羽】の賃貸マンション情報です。外観タイル貼りのの分譲賃貸マンション。鉄筋コンクリート造11階建て・2004年築でとても綺麗です。エレベーター(防犯カメラ付)・モニター付オートロックシステム・宅配ボックス採用でセキュリティも安心。9階・21.84㎡のタイプ。エアコン・室内洗濯機置場・浴室換気乾燥暖房機・ウォシュレットなど充実の設備で快適な新生活をサポートします。インターネット光導入済み。是非ご内覧ください。掲載情報について
※随時更新を心がけておりますが、掲載している物件が万が一成約している場合もございますので予めご了承下さいませ。
※駐車場・駐輪場・バイク置場の空き状況についてはお問い合わせ下さい。
※ペット飼育やSOHO利用・楽器使用の可否に関しては、建物の管理規約で可能になっていても、お部屋の所有者様によって禁止の場合もございますので御注意下さい。
詳細はメールやお電話にてスタッフまでご相談下さい。アイル文京音羽の周辺地図
似た条件の物件
最近見た物件














