ステージグランデ本郷
♥お気に入りステージグランデ本郷
♥お気に入り










ステージグランデ本郷 9階
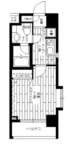
賃料 要問合せ(※) 管理費 敷金 1ヶ月 解約時1ヶ月分償却 礼金 1ヶ月 間取り 1K 面積 23.68㎡ 階数 9階 状態 要問合せ(※) 入居 即時入居 更新料 新賃料の1ヶ月分 諸費用 取引態様 媒介 設備 オートロック、法人契約相談可、駐輪場有、宅配BOX、コンビニ近、BS・CS、CATV、光ファイバー、インターネット対応、専用ゴミ置場、防犯カメラ、TVモニター付インターホン、分譲賃貸、東京大学徒歩圏、東京大学自転車圏、エレベーター、2階以上、二面採光、コンロ二口以上、ガスキッチン、システムキッチン、エアコン、フローリング、独立洗面台、浴室乾燥、ウォシュレット、バストイレ別、室内洗濯機置場、収納、角部屋 物件概要
物件名 ステージグランデ本郷 所在地 東京都文京区本郷3-6-15 最寄駅 東京メトロ丸ノ内線 本郷三丁目駅 徒歩6分
JR中央線(快速) 御茶ノ水駅 徒歩7分
都営大江戸線 本郷三丁目駅 徒歩7分
学区 構造 SRC 階数 地上14階建て 築年月 2003年11月 駐車場 無 備考 ステージグランデ本郷の賃貸情報です。 詳細閲覧ありがとうございます。最新の空室の確認、内覧のご予約はメール・電話にてお問い合わせください。 文京区の賃貸マンション・賃貸アパートはベステックスにおまかせください! 問合番号 12103 更新日 2022/10/13 このお部屋について
文京区本郷3丁目に佇む高級分譲賃貸マンション『ステージグランデ本郷』♪丸ノ内線・大江戸線本郷三丁目駅徒歩6分、JR中央線・丸ノ内線御茶ノ水駅徒歩7分の好立地♪2003年11月築鉄骨鉄筋コンクリート造地上14階建ての分譲マンションです♪分譲マンションならではのハイグレード仕様・設備♪オートロック・TVモニター付インターフォン完備で安心セキュリティ♪インターネット使い放題!是非ご覧下さい!! ※画像は別のお部屋の写真です。掲載情報について
※随時更新を心がけておりますが、掲載している物件が万が一成約している場合もございますので予めご了承下さいませ。
※駐車場・駐輪場・バイク置場の空き状況についてはお問い合わせ下さい。
※ペット飼育やSOHO利用・楽器使用の可否に関しては、建物の管理規約で可能になっていても、お部屋の所有者様によって禁止の場合もございますので御注意下さい。
詳細はメールやお電話にてスタッフまでご相談下さい。ステージグランデ本郷の周辺地図
似た条件の物件
最近見た物件
















