レジディア文京本郷Ⅱ
♥お気に入りレジディア文京本郷Ⅱ
♥お気に入り










レジディア文京本郷Ⅱ 2階
賃料 要問合せ(※) 管理費 敷金 0ヶ月 礼金 0ヶ月 間取り 1K 面積 21.60㎡ 階数 2階 状態 要問合せ(※) 入居 相談 更新料 新賃料の1ヶ月 諸費用 取引態様 媒介 設備 オートロック、バイク置場有、法人契約相談可、駐輪場有、宅配BOX、コンビニ近、BS・CS、光ファイバー、インターネット対応、専用ゴミ置場、防犯カメラ、TVモニター付インターホン、分譲賃貸、東京大学徒歩圏、東京大学自転車圏、エレベーター、湯島小学校エリア、2階以上、コンロ二口以上、ガスキッチン、システムキッチン、エアコン、フローリング、浴室乾燥、ウォシュレット、24時間換気システム、バストイレ別、室内洗濯機置場、収納、礼金1以下
物件概要
物件名 レジディア文京本郷Ⅱ 所在地 東京都文京区本郷3-17-6 最寄駅 東京メトロ丸ノ内線 本郷三丁目駅 徒歩3分
都営大江戸線 本郷三丁目駅 徒歩3分
都営三田線 水道橋駅 徒歩8分
学区 湯島小学校 構造 RC 階数 地上14階建て 築年月 2006年01月 駐車場 無 備考 ◆保証会社利用必須【IRS:初回保証料40%・月額手数料890円・年間保証料10,000円】【オリコフォレントインシュア:初回保証料50%・継続保証委託料10,000円/年】 ◆1年未満解約時、賃料1ヶ月分の違約金有り ◆敷金1ヶ月(大手法人契約の場合は2ヶ月)◆初回鍵交換費(税込):19,800円 ◆入居者限定会員サービス会費/2年(税込):11,000円 ◆インターネット使用料(税込):1,650円 ◆初回鍵交換費(税込):19,800円 ◆入居者限定会員サービス会費/2年(税込):11,000円 ◆ 詳細閲覧ありがとうございます。最新の空室の確認、内覧のご予約はメール・電話にてお問い合わせください。 文京区の賃貸マンション・賃貸アパートはベステックスにおまかせください! 問合番号 48658_206 更新日 2024/03/02 このお部屋について
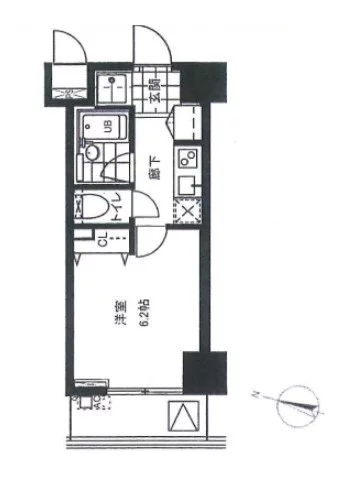
お部屋は2階部分にございます。
専有面積:21.6㎡の1Kタイプです。
☆注目ポイント☆
その⓵
天気・時間帯関係なく洗濯物の乾燥が可能な浴室乾燥機完備♪
その⓶
室内洗濯機置き場は室内に完備♪
その⓷
料理をする方は必見、人気のシステムキッチン仕様でコンロは2口完備!
是非お気軽にお問い合わせください。
*室内写真は同建物別室です。掲載情報について
※随時更新を心がけておりますが、掲載している物件が万が一成約している場合もございますので予めご了承下さいませ。
※駐車場・駐輪場・バイク置場の空き状況についてはお問い合わせ下さい。
※ペット飼育やSOHO利用・楽器使用の可否に関しては、建物の管理規約で可能になっていても、お部屋の所有者様によって禁止の場合もございますので御注意下さい。
詳細はメールやお電話にてスタッフまでご相談下さい。レジディア文京本郷Ⅱの周辺地図
似た条件の物件
最近見た物件

















レジディアシリーズのため過ごしやすく設備も十分となっております。
バストイレでして使いやすいシンプルなつくり。