ザ・パークハウス本郷 ~高級分譲賃貸マンション~
♥お気に入りザ・パークハウス本郷 ~高級分譲賃貸マンション~
♥お気に入り
ザ・パークハウス本郷 8階
| 賃料 | 要問合せ(※) | 管理費 | |
|---|---|---|---|
| 敷金 | 1ヶ月 ペット飼育時1ヶ月追加 | 礼金 | 1ヶ月 |
| 間取り | 3LDK | 面積 | 78.76㎡ |
| 階数 | 8階 | 状態 | 要問合せ(※) |
| 入居 | 相談 | 更新料 | 新賃料の1ヶ月分 |
| 諸費用 | 取引態様 | 媒介 | |
| 設備 | オートロック、法人契約相談可、駐輪場有、宅配BOX、コンビニ近、光ファイバー、インターネット対応、専用ゴミ置場、防犯カメラ、TVモニター付インターホン、分譲賃貸、東京大学徒歩圏、ペット可、エレベーター、本郷小学校エリア、2階以上、二面採光、カウンターキッチン、コンロ二口以上、ガスキッチン、システムキッチン、ウォークインクローゼット、エアコン、フローリング、独立洗面台、追い焚き機能、浴室乾燥、ウォシュレット、24時間換気システム、バストイレ別、室内洗濯機置場、洗濯機置場あり、床暖房、収納、角部屋、礼金1以下、2人入居可、保証会社利用、楽器相談可 | ||
物件概要
| 物件名 | ザ・パークハウス本郷 | ||
|---|---|---|---|
| 所在地 | 東京都文京区本郷1-28-8 | ||
| 最寄駅 |
東京メトロ丸ノ内線 本郷三丁目駅 徒歩7分 都営三田線 水道橋駅 徒歩5分 東京メトロ丸ノ内線 後楽園駅 徒歩7分 |
||
| 学区 | 本郷小学校 | 構造 | RC |
| 階数 | 地上14階建て | 築年月 | 2018年12月 |
| 駐車場 | 有(詳細要確認) | ||
| 備考 | 保証会社:SBIギャランティ 初回保証料:40% 年間更新料:8000円 24時間サポート:16500円 火災保険:要加入 詳細閲覧ありがとうございます。最新の空室の確認、内覧のご予約はメール・電話にてお問い合わせください。 文京区の賃貸マンション・賃貸アパートはベステックスにおまかせください! | ||
| 問合番号 | 0506_801 | ||
| 更新日 | 2025/06/12 | ||
このお部屋について
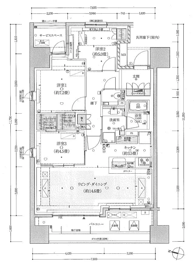
8階、78.76㎡、3LDKのご紹介となります。
①キッチンにはディスポーザー・食洗器搭載。
②LD部分には床暖房
③ハイグレード分譲賃貸マンション
①キッチンにはディスポーザー・食洗器搭載。
②LD部分には床暖房
③ハイグレード分譲賃貸マンション
掲載情報について
※随時更新を心がけておりますが、掲載している物件が万が一成約している場合もございますので予めご了承下さいませ。
※駐車場・駐輪場・バイク置場の空き状況についてはお問い合わせ下さい。
※ペット飼育やSOHO利用・楽器使用の可否に関しては、建物の管理規約で可能になっていても、お部屋の所有者様によって禁止の場合もございますので御注意下さい。
詳細はメールやお電話にてスタッフまでご相談下さい。
※駐車場・駐輪場・バイク置場の空き状況についてはお問い合わせ下さい。
※ペット飼育やSOHO利用・楽器使用の可否に関しては、建物の管理規約で可能になっていても、お部屋の所有者様によって禁止の場合もございますので御注意下さい。
詳細はメールやお電話にてスタッフまでご相談下さい。

3部屋の洋室全てが振り分けの使いやすい間取りです!
ワイドスパンのバルコニーに面したリビングダイニングは約14.6帖と広々!床暖房範囲も広く、カセット型エアコンが2基設置されています。
カウンターキッチンを採用しているので開放的で、キッチンスペースは約3.5帖と、こちらもゆとりの広さ。食器棚も備え付けられているので収納も豊富!システムキッチンにはグリル付きの3口ガスコンロ・食洗機・浄水器・ディスポーザが備わったハイグレード仕様で、お料理・洗い物なども楽々♪
洋室はそれぞれ約7.2帖・5.0帖・4.5帖。エアコンは全室に設置予定で、収納も2部屋はウォークインクローゼット付きなので非常に豊富!
ゆとりある玄関スペースは、シューズボックスも大きめで靴の収納も安心!
水まわりも、温水洗浄便座・手洗いカウンター・吊戸棚付きのトイレに、大きな三面鏡の独立洗面台・洗濯機置場・リネン庫付きの洗面所、ゆったりとした1418サイズの追い焚き機能・浴室乾燥機・ミストサウナ付きユニットバス、といった具合に、分譲ならではの仕様と高級感の溢れる内容です!
もちろん、セキュリティ面についても安心♪
また、ペットの飼育や楽器の演奏についても相談可能です!
人気の本郷アドレスの高級分譲マンション、是非お問い合わせください!
※ペット飼育:管理規約等遵守。小型犬・猫計2匹まで。敷金1ヶ月積み増し。
※楽器使用:管理規約等遵守。10~20時、1日2時間以上不可。