【築浅】マーロ後楽園
♥お気に入り【築浅】マーロ後楽園
♥お気に入り
【築浅】マーロ後楽園 3階
| 賃料 | 要問合せ(※) | 管理費 | |
|---|---|---|---|
| 敷金 | 0ヶ月 ペット飼育時:1ヵ月追加 | 礼金 | 0ヶ月 |
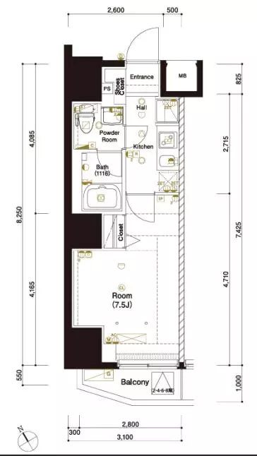
| 間取り | 1K | 面積 | 25.57㎡ |
| 階数 | 3階 | 状態 | 要問合せ(※) |
| 入居 | 相談 | 更新料 | 新賃料の1ヵ月分 |
| 諸費用 | 取引態様 | 媒介 | |
| 設備 | 新築、オートロック、バイク置場有、法人契約相談可、駐輪場有、宅配BOX、コンビニ近、BS・CS、CATV、光ファイバー、インターネット対応、専用ゴミ置場、防犯カメラ、TVモニター付インターホン、東京大学徒歩圏、東京大学自転車圏、礼金なし、ペット可、エレベーター、礫川小学校エリア、2階以上、コンロ二口以上、ガスキッチン、システムキッチン、エアコン、フローリング、独立洗面台、浴室乾燥、ウォシュレット、24時間換気システム、バストイレ別、室内洗濯機置場、洗濯機置場あり、収納、角部屋、礼金1以下、敷金なし、保証会社利用 | ||
物件概要
| 物件名 | 【築浅】マーロ後楽園 | ||
|---|---|---|---|
| 所在地 | 東京都文京区小石川2-6-6 | ||
| 最寄駅 |
東京メトロ丸ノ内線 後楽園駅 徒歩4分 東京メトロ南北線 後楽園駅 徒歩4分 都営三田線 春日駅 徒歩4分 |
||
| 学区 | 礫川小学校 | 構造 | RC |
| 階数 | 地上13階建て | 築年月 | 2025年01月 |
| 駐車場 | |||
| 備考 | 初回保証料:総賃料の50%・月額保証料:総賃料の1%・火災保険料:18,000円・安心入居サポート:15,000円・クリーニング代:35,000円・エアコンクリーニング代:15,000円 詳細閲覧ありがとうございます。最新の空室の確認、内覧のご予約はメール・電話にてお問い合わせください。 文京区の賃貸マンション・賃貸アパートはベステックスにおまかせください! | ||
| 問合番号 | 20250211-301 | ||
| 更新日 | 2025/03/01 | ||
このお部屋について
3階・1Kタイプのご紹介になります。
~~ここがポイント~~
①浴室乾燥・暖房・涼風・換気機能付きのお風呂!
②ペット飼育相談可!
③南西向き住居!
気になった方は、是非お問い合わせくださいませ。
~~ここがポイント~~
①浴室乾燥・暖房・涼風・換気機能付きのお風呂!
②ペット飼育相談可!
③南西向き住居!
気になった方は、是非お問い合わせくださいませ。
掲載情報について
※随時更新を心がけておりますが、掲載している物件が万が一成約している場合もございますので予めご了承下さいませ。
※駐車場・駐輪場・バイク置場の空き状況についてはお問い合わせ下さい。
※ペット飼育やSOHO利用・楽器使用の可否に関しては、建物の管理規約で可能になっていても、お部屋の所有者様によって禁止の場合もございますので御注意下さい。
詳細はメールやお電話にてスタッフまでご相談下さい。
※駐車場・駐輪場・バイク置場の空き状況についてはお問い合わせ下さい。
※ペット飼育やSOHO利用・楽器使用の可否に関しては、建物の管理規約で可能になっていても、お部屋の所有者様によって禁止の場合もございますので御注意下さい。
詳細はメールやお電話にてスタッフまでご相談下さい。







