パークアクシス御茶ノ水ステージ〜楽器可・ペット可・御茶ノ水駅徒歩8分
♥お気に入りパークアクシス御茶ノ水ステージ〜楽器可・ペット可・御茶ノ水駅徒歩8分
♥お気に入り

玄関

シューズボックス

玄関収納

洗面所

トイレ

洗濯機置き場

洗面台

バスルーム


パークアクシス御茶ノ水ステージ 10階
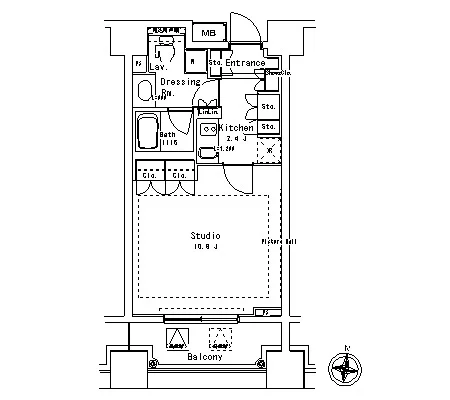
賃料 要問合せ(※) 管理費 敷金 1ヶ月 礼金 0ヶ月 間取り 1K 面積 33.48㎡ 階数 10階 状態 要問合せ(※) 入居 相談 更新料 新賃料の1ヶ月分 諸費用 取引態様 媒介 設備 デザイナーズ、フロントサービス有、オートロック、法人契約相談可、駐車場有、駐輪場有、宅配BOX、コンビニ近、BS・CS、CATV、光ファイバー、インターネット対応、専用ゴミ置場、防犯カメラ、TVモニター付インターホン、東京大学徒歩圏、ペット可、エレベーター、湯島小学校エリア、10階以上、南向き、コンロ二口以上、ガスキッチン、システムキッチン、ウォークインクローゼット、エアコン、フローリング、独立洗面台、追い焚き機能、浴室乾燥、ウォシュレット、バストイレ別、室内洗濯機置場、収納、楽器相談可 物件概要
物件名 パークアクシス御茶ノ水ステージ 所在地 東京都文京区湯島3-2-14 最寄駅 JR中央・総武線 御茶ノ水駅 徒歩8分
東京メトロ銀座線 末広町駅 徒歩6分
都営大江戸線 本郷三丁目駅 徒歩8分
学区 湯島小学校 構造 RC 階数 地上13階建て 地下2階 築年月 2006年02月 駐車場 有 ※要空確認 備考 ◆火災保険は貸主指定の保険会社にご加入頂きます ◆鍵交換 16500円 ◆口座振替事務手数料 月額110円 ◆保証会社必須:レジデンタシスタンス株式会社(初回保証委託料(最低20000円)、月額賃料等の50%、 1年目以降:9600円/年) ◆ペット飼育相談可能(小型犬2匹まで・猫不可/飼育時、敷金1ヶ月積み増し) ◆ピアノ相談可能 ◆ 詳細閲覧ありがとうございます。最新の空室の確認、内覧のご予約はメール・電話にてお問い合わせください。 文京区の賃貸マンション・賃貸アパートはベステックスにおまかせください! 問合番号 35682453543-1012 更新日 2024/07/04 このお部屋について
10階、1K、33.48㎡のお部屋のご紹介です!
~オススメポイント~
①.洋室は7.1帖で家具の配置がしやすい間取りとなっております♪
②.楽器・ピアノ相談可能と好条件のお部屋です★
③.2口ガスコンロのシステムキッチンで料理も捗ります♪
是非ご覧下さい!!掲載情報について
※随時更新を心がけておりますが、掲載している物件が万が一成約している場合もございますので予めご了承下さいませ。
※駐車場・駐輪場・バイク置場の空き状況についてはお問い合わせ下さい。
※ペット飼育やSOHO利用・楽器使用の可否に関しては、建物の管理規約で可能になっていても、お部屋の所有者様によって禁止の場合もございますので御注意下さい。
詳細はメールやお電話にてスタッフまでご相談下さい。パークアクシス御茶ノ水ステージの周辺地図
最近見た物件














