マチュリティ小石川
♥お気に入りマチュリティ小石川
♥お気に入り






マチュリティ小石川 3階
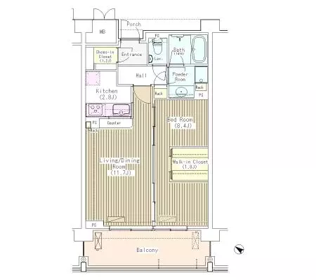
賃料 要問合せ(※) 管理費 敷金 2ヶ月 礼金 1ヶ月 間取り 1LDK 面積 54.93㎡ 階数 3階 状態 要問合せ(※) 入居 平成23年10月上旬 更新料 新賃料の1ヵ月分 諸費用 取引態様 媒介 設備 デザイナーズ、オートロック、駐車場有、駐輪場有、宅配BOX、BS・CS、CATV、光ファイバー、インターネット対応、専用ゴミ置場、防犯カメラ、TVモニター付インターホン、分譲賃貸、ペット可、エレベーター、金富小学校エリア、2階以上、ルーフバルコニー、南向き、カウンターキッチン、コンロ二口以上、IHキッチン、システムキッチン、ウォークインクローゼット、エアコン、フローリング、独立洗面台、追い焚き機能、浴室乾燥、ウォシュレット、バストイレ別、室内洗濯機置場、収納、2人入居可、楽器相談可、法人契約相談可 物件概要
物件名 マチュリティ小石川 所在地 東京都文京区春日2-12-3 最寄駅 東京メトロ丸ノ内線 茗荷谷駅 徒歩11分
東京メトロ南北線 後楽園駅 徒歩11分
都営三田線 春日駅 徒歩11分
学区 金富小学校 構造 RC 階数 地上5階建て 築年月 2006年03月 駐車場 駐車場要確認 備考 【マチュリティ小石川】の賃貸マンション情報!ペット飼育の場合は敷金3ヶ月となります。 ※写真は同マンションの異なるタイプのお部屋です。 詳細閲覧ありがとうございます。最新の空室の確認、内覧のご予約はメール・電話にてお問い合わせください。 文京区の賃貸マンション・賃貸アパートはベステックスにおまかせください! 問合番号 939 更新日 2011/09/20 このお部屋について
地上5階建て賃貸マンションの3階のお部屋です!リビングダイニング11.7帖・キッチン2.8帖、ベッドルームが8.4帖の1LDKタイプ。広々としたバルコニーもご利用いただけます!エアコンはもちろん、雨の日のお洗濯に便利な浴室乾燥機、うれしいグリル付きの3口IHクッキングヒーターなど設備も充実!TVモニタ付インターフォン、オートロックシステム、防犯カメラのほかフロント管理人が巡回しておりセキュリティも安心です!ピアノ演奏・ペット飼育もご相談下さい!掲載情報について
※随時更新を心がけておりますが、掲載している物件が万が一成約している場合もございますので予めご了承下さいませ。
※駐車場・駐輪場・バイク置場の空き状況についてはお問い合わせ下さい。
※ペット飼育やSOHO利用・楽器使用の可否に関しては、建物の管理規約で可能になっていても、お部屋の所有者様によって禁止の場合もございますので御注意下さい。
詳細はメールやお電話にてスタッフまでご相談下さい。マチュリティ小石川の周辺地図
似た条件の物件
最近見た物件












