パークアクシス文京ステージ
♥お気に入りパークアクシス文京ステージ
♥お気に入り









パークアクシス文京ステージ 7階
賃料 要問合せ(※) 管理費 敷金 1ヶ月 礼金 1ヶ月 間取り 1K 面積 29.29㎡ 階数 7階 状態 要問合せ(※) 入居 相談 更新料 新賃料の1ヵ月分 諸費用 取引態様 媒介 設備 オートロック、駐車場有、駐輪場有、宅配BOX、BS・CS、CATV、光ファイバー、インターネット対応、専用ゴミ置場、防犯カメラ、TVモニター付インターホン、東京大学自転車圏、礼金なし、ペット可、エレベーター、金富小学校エリア、2階以上、コンロ二口以上、ガスキッチン、システムキッチン、エアコン、フローリング、独立洗面台、追い焚き機能、浴室乾燥、バストイレ別、室内洗濯機置場、収納、礼金1以下、楽器相談可、法人契約相談可 物件概要
物件名 パークアクシス文京ステージ 所在地 東京都文京区水道2-4-12 最寄駅 東京メトロ有楽町線 江戸川橋駅 徒歩5分
東京メトロ東西線 神楽坂駅 徒歩10分
東京メトロ丸ノ内線 茗荷谷駅 徒歩13分
学区 金富小学校 構造 RC 階数 地上11階建て 築年月 2005年09月 駐車場 有(条件相談) 備考 パークアクシス文京ステージの賃貸マンション情報です♪ ペット相談・ピアノ相談♪ 詳細閲覧ありがとうございます。最新の空室の確認、内覧のご予約はメール・電話にてお問い合わせください。 文京区の賃貸マンション・賃貸アパートはベステックスにおまかせください! 問合番号 20220331-1 更新日 2022/03/31 このお部屋について
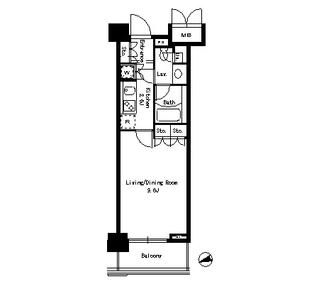
7階部分、29.29㎡の1Kタイプのお部屋のご紹介です。
目の前が抜けており明るい室内になっております。
約9.6帖の洋室は十分な広さで梁が小さく家具の配置もしやすいものになっております。
収納として2箇所のストロークを完備!!
キッチンは縦に並んだスタイリッシュな女性に嬉しい2口ガスシステムキッチンとなっております。
冷蔵庫置場が廊下部分にあるので居室に持っていく必要がなく、その分余裕を持ってお部屋のスペースを活用出来ます。
水回りはゆとりある広さの脱衣所を完備。
浴室に付いている浴室換気乾燥機は、カビ防止だけではなく悪天候時も乾燥が容易になり、常に浴室を清潔な状態に保ってくれる頼りになる味方です。
1Kタイプながら追焚機能も付いており、シャワーだけでなく、たまにはお湯に浸かり疲れをとりたい!いつもあったかいお風呂に入りたい!という方には嬉しい設備です。
室内洗濯機置き場は扉が付いており、来客時には隠すことが出来るようになっております。
TVモニター付きインターフォンとオートロックで安心セキュリティ♪
ぜひお問い合わせ下さい!
※写真は同マンション別部屋のものとなります。掲載情報について
※随時更新を心がけておりますが、掲載している物件が万が一成約している場合もございますので予めご了承下さいませ。
※駐車場・駐輪場・バイク置場の空き状況についてはお問い合わせ下さい。
※ペット飼育やSOHO利用・楽器使用の可否に関しては、建物の管理規約で可能になっていても、お部屋の所有者様によって禁止の場合もございますので御注意下さい。
詳細はメールやお電話にてスタッフまでご相談下さい。パークアクシス文京ステージの周辺地図
似た条件の物件
最近見た物件
















