パークアクシス御茶ノ水ヒルトップ
♥お気に入りパークアクシス御茶ノ水ヒルトップ
♥お気に入り










パークアクシス御茶ノ水ヒルトップ 5階
賃料 要問合せ(※) 管理費 敷金 2ヶ月 礼金 1ヶ月 間取り 1LDK 面積 33.71㎡ 階数 5階 状態 要問合せ(※) 入居 相談 更新料 1ヶ月(新賃料) 諸費用 取引態様 媒介 設備 オートロック、バイク置場有、駐車場有、駐輪場有、宅配BOX、コンビニ近、BS・CS、光ファイバー、インターネット対応、専用ゴミ置場、防犯カメラ、TVモニター付インターホン、東京大学自転車圏、エレベーター、2階以上、コンロ二口以上、ガスキッチン、システムキッチン、エアコン、フローリング、独立洗面台、追い焚き機能、浴室乾燥、ウォシュレット、24時間換気システム、バストイレ別、室内洗濯機置場、収納、法人契約相談可 物件概要
物件名 パークアクシス御茶ノ水ヒルトップ 所在地 東京都千代田区神田駿河台2-9-6 最寄駅 JR中央・総武線 御茶ノ水駅 徒歩6分
東京メトロ丸ノ内線 御茶ノ水駅 徒歩6分
学区 構造 RC 階数 地上14階建て 築年月 2018年08月 駐車場 有(要空確認) 備考 詳細閲覧ありがとうございます。最新の空室の確認、内覧のご予約はメール・電話にてお問い合わせください。 文京区の賃貸マンション・賃貸アパートはベステックスにおまかせください! 問合番号 453545324 更新日 2020/12/03 このお部屋について
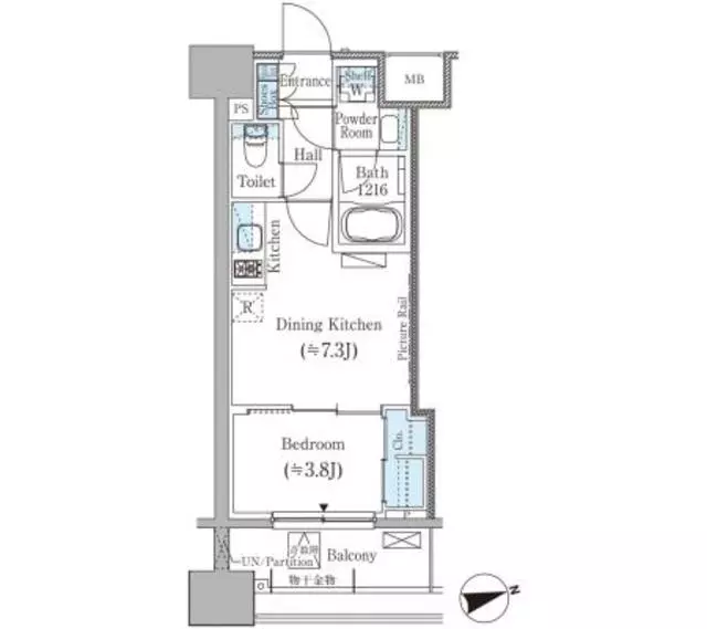
【パークアクシス御茶ノ水ヒルトップ】5階、広さ33.71㎡、1LDKタイプのご紹介です♪
リビング・ダイニング・キッチンは約8.5帖あり、家具のレイアウトイメージが湧きやすい間取りです☆
部屋のスペースを無駄なく活用できる空間です!
キッチンはシステムキッチン2口ガスコンロ・グリル付き!
シンクと調理スペースも広めの造りなので、家事がはかどる設計です♪
収納もあり、食器の収納にも困りません♪
隣接するベッドルームは約3.8帖。
ダイニング部分と合わせた空間にも、引き戸を閉じた空間としても利用できます。
収納力に富んだクロゼットもあります♪
気になる水周りは...
バス・トイレはセパレートタイプ!
バスルームには浴室乾燥機能があり、悪天候でも洗濯物を干すことが出来ます♪
追い焚き機能も完備しており、充実したバスタイムを送ることが出来ます☆
トイレにはウォシュレット機能も御座います!
シューズクローゼットも完備でたっぷりと収納可能です☆
エアコン、TVモニター付きインターホン完備で生活をサポートしてくれます☆
神田駿河台2丁目の賃貸マンション【パークアクシス御茶ノ水ヒルトップ】
是非、ベステックスまでお問い合わせください!
※写真は同物件別部屋のものとなります。掲載情報について
※随時更新を心がけておりますが、掲載している物件が万が一成約している場合もございますので予めご了承下さいませ。
※駐車場・駐輪場・バイク置場の空き状況についてはお問い合わせ下さい。
※ペット飼育やSOHO利用・楽器使用の可否に関しては、建物の管理規約で可能になっていても、お部屋の所有者様によって禁止の場合もございますので御注意下さい。
詳細はメールやお電話にてスタッフまでご相談下さい。パークアクシス御茶ノ水ヒルトップの周辺地図
似た条件の物件
最近見た物件














