プレミアステージ湯島
♥お気に入りプレミアステージ湯島
♥お気に入り










プレミアステージ湯島 2階
賃料 要問合せ(※) 管理費 敷金 1ヶ月 礼金 0ヶ月 間取り 1R 面積 22.49㎡ 階数 2階 状態 要問合せ(※) 入居 相談 更新料 新賃料の1ヶ月分 諸費用 取引態様 媒介 設備 オートロック、法人契約相談可、駐車場有、駐輪場有、宅配BOX、コンビニ近、BS・CS、光ファイバー、インターネット対応、専用ゴミ置場、防犯カメラ、TVモニター付インターホン、東京大学自転車圏、礼金なし、エレベーター、湯島小学校エリア、2階以上、コンロ二口以上、ガスキッチン、システムキッチン、エアコン、フローリング、独立洗面台、浴室乾燥、ウォシュレット、バストイレ別、室内洗濯機置場、収納、保証会社利用 物件概要
物件名 プレミアステージ湯島 所在地 東京都文京区湯島3-16-11 最寄駅 東京メトロ千代田線 湯島駅 徒歩1分
東京メトロ銀座線 末広町駅 徒歩6分
都営大江戸線 上野御徒町駅 徒歩6分
学区 湯島小学校 構造 SRC 階数 地上14階建て 築年月 2006年03月 駐車場 機械式 L4900 W1800 H1550 1700KG 空き要確認 備考 ◇保証会社利用必須 ◇鍵交換費用有 ◇火災保険加入必須 詳細閲覧ありがとうございます。最新の空室の確認、内覧のご予約はメール・電話にてお問い合わせください。 文京区の賃貸マンション・賃貸アパートはベステックスにおまかせください! 問合番号 958741-203 更新日 2025/04/11 このお部屋について
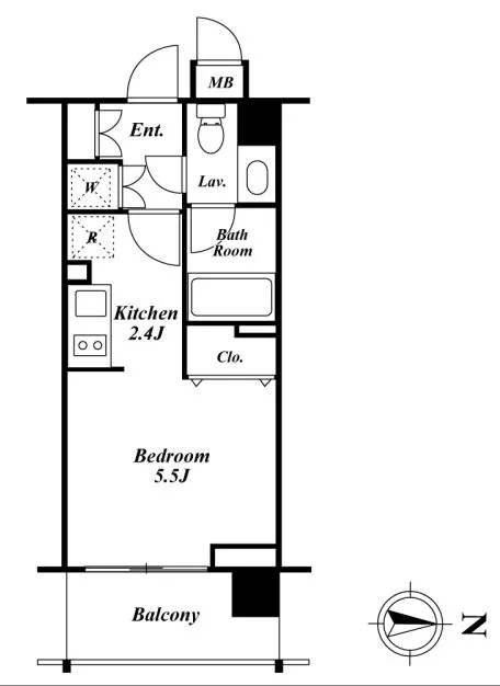
2階部分・22.49㎡・ワンルームのご紹介です!
5.5帖の洋室は大きな柱もなく、家具の配置がしやすい間取りです。床もフローリング貼りで掃除などのお手入れも楽々♪
クローゼットも一人暮らしの荷物は十分収納可能な大きさです!
キッチンは2.4帖とゆとりがあり、ガス2口のシステムキッチンを採用!コンロは縦に並んでいるため、シンクとの間のスペースが広く使えて調理もしやすいです!
また、ワンルームでは希少なディスポーザも完備しています♪
水まわりの設備も充実!
人気のバストイレ別はもちろん、女性人気の高い独立洗面台も完備!トイレには洗浄機能付き便座も付いており快適♪
浴室には浴室乾燥機もあるので、入浴後や掃除後の換気もバッチリ!雨の日には洗濯物も乾燥可能!
オートロック&TVモニター付きインターホンも完備したセキュリティ面も安心のマンション♪
敷地内ゴミ置場や宅配ボックスなど、あると便利な人気の共用設備も揃っているので快適にお住まい頂けます!
是非お問い合わせください!
※写真は同マンション内別部屋のものです。掲載情報について
※随時更新を心がけておりますが、掲載している物件が万が一成約している場合もございますので予めご了承下さいませ。
※駐車場・駐輪場・バイク置場の空き状況についてはお問い合わせ下さい。
※ペット飼育やSOHO利用・楽器使用の可否に関しては、建物の管理規約で可能になっていても、お部屋の所有者様によって禁止の場合もございますので御注意下さい。
詳細はメールやお電話にてスタッフまでご相談下さい。プレミアステージ湯島の周辺地図
似た条件の物件
最近見た物件
















