マチュリティ小石川
♥お気に入りマチュリティ小石川
♥お気に入り










マチュリティ小石川 1階
賃料 要問合せ(※) 管理費 敷金 2ヶ月 ペット飼育時3ヶ月 礼金 1ヶ月 間取り 1LDK 面積 44.88㎡ 階数 1階 状態 要問合せ(※) 入居 要相談 更新料 新賃料の1ヶ月分 諸費用 取引態様 媒介 設備 フロントサービス有、オートロック、駐車場有、駐輪場有、宅配BOX、コンビニ近、BS・CS、CATV、光ファイバー、インターネット対応、専用ゴミ置場、防犯カメラ、TVモニター付インターホン、ペット可、エレベーター、金富小学校エリア、2階以上、コンロ二口以上、IHキッチン、システムキッチン、ウォークインクローゼット、エアコン、フローリング、独立洗面台、追い焚き機能、浴室乾燥、トランクルーム、バストイレ別、室内洗濯機置場、収納、礼金1以下、2人入居可、楽器相談可、法人契約相談可 物件概要
物件名 マチュリティ小石川 所在地 東京都文京区春日2-12-3 最寄駅 東京メトロ丸ノ内線 茗荷谷駅 徒歩11分
東京メトロ南北線 後楽園駅 徒歩11分
都営三田線 春日駅 徒歩11分
学区 金富小学校 構造 RC 階数 地上5階建て 築年月 2006年03月 駐車場 駐車場要確認 備考 THETAあり。(別室タイプとなります) 詳細閲覧ありがとうございます。最新の空室の確認、内覧のご予約はメール・電話にてお問い合わせください。 文京区の賃貸マンション・賃貸アパートはベステックスにおまかせください! 問合番号 19030516 更新日 2019/03/05 このお部屋について
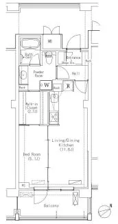
お部屋は1階部分にございます。
専有面積:44.88㎡の1LDKタイプです。
☆注目ポイント☆
その①
ウォークインクローゼット完備、荷物もスッキリ収納可♪
その②
追焚や浴室乾燥機能、グリル付き3口コンロなど水回り設備充実♪
その③
床暖房完備で足元から暖かい♪
ペット飼育相談可(小型犬・猫2匹迄*敷金3ヶ月)!
是非お気軽にお問い合わせください!
*室内写真は同建物別室です。掲載情報について
※随時更新を心がけておりますが、掲載している物件が万が一成約している場合もございますので予めご了承下さいませ。
※駐車場・駐輪場・バイク置場の空き状況についてはお問い合わせ下さい。
※ペット飼育やSOHO利用・楽器使用の可否に関しては、建物の管理規約で可能になっていても、お部屋の所有者様によって禁止の場合もございますので御注意下さい。
詳細はメールやお電話にてスタッフまでご相談下さい。マチュリティ小石川の周辺地図
最近見た物件














