カーザビアンカ
♥お気に入りカーザビアンカ
♥お気に入り
カーザビアンカ 13階
| 賃料 | 要問合せ(※) | 管理費 | |
|---|---|---|---|
| 敷金 | 1ヶ月 | 礼金 | 1ヶ月 |
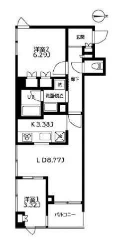
| 間取り | 1SLDK | 面積 | 51.63㎡ |
| 階数 | 13階 | 状態 | 要問合せ(※) |
| 入居 | 2019年3月中旬予定 | 更新料 | 無し:定期借家2年契約(再契約可)、再契約料・新賃料の1ヶ月分 |
| 諸費用 | 取引態様 | 媒介 | |
| 設備 | 新築、オートロック、駐輪場有、宅配BOX、コンビニ近、BS・CS、インターネット対応、専用ゴミ置場、防犯カメラ、TVモニター付インターホン、エレベーター、関口台町小学校エリア、10階以上、最上階、二面採光、日当たり良好、カウンターキッチン、コンロ二口以上、ガスキッチン、システムキッチン、エアコン、フローリング、独立洗面台、追い焚き機能、ウォシュレット、バストイレ別、室内洗濯機置場、収納、角部屋、礼金1以下、2人入居可、保証会社利用、法人契約相談可 | ||
物件概要
| 物件名 | カーザビアンカ | ||
|---|---|---|---|
| 所在地 | 東京都文京区関口1-43-6 | ||
| 最寄駅 |
東京メトロ有楽町線 江戸川橋駅 徒歩7分 東京メトロ東西線 早稲田駅 徒歩8分 都営都電荒川線 早稲田駅 徒歩9分 |
||
| 学区 | 関口台町小学校 | 構造 | RC |
| 階数 | 地上13階建て | 築年月 | 2019年02月 |
| 駐車場 | 無 | ||
| 備考 | 詳細閲覧ありがとうございます。最新の空室の確認、内覧のご予約はメール・電話にてお問い合わせください。 文京区の賃貸マンション・賃貸アパートはベステックスにおまかせください! | ||
| 問合番号 | 5971303 | ||
| 更新日 | 2018/12/21 | ||
このお部屋について
13階部分、最上階の51.63㎡の1SLDKのお部屋です!
こちらのお部屋のポイントを3つ♪
1.角部屋の三面採光!南側の壁はほとんどが窓なので開放的で日当たり良好♪
2.最上階角部屋という、接するお部屋の少ない位置!生活音などを気にして…といったストレスも感じにくいです♪
3.キッチン・水まわりなど、いずれも充実の設備・仕様です!
こちらのお部屋のポイントを3つ♪
1.角部屋の三面採光!南側の壁はほとんどが窓なので開放的で日当たり良好♪
2.最上階角部屋という、接するお部屋の少ない位置!生活音などを気にして…といったストレスも感じにくいです♪
3.キッチン・水まわりなど、いずれも充実の設備・仕様です!
| 間取図 | 所在階 | 間取り | 面積 | 賃料 | 管理費 | 敷金 | 礼金 | ||||
|---|---|---|---|---|---|---|---|---|---|---|---|
![]() |
2階 | 1LDK | 40.91㎡ | 172,000円 | 10,000円 | 1ヶ月 | 2ヶ月 |
所在階2階 面積40.91㎡ 間取り1LDK 賃料 172,000円
|
管理費10,000円 敷金1ヶ月 礼金2ヶ月 |
♥ お問い合わせ
|
♥お気に入り お問い合わせ |
![]() |
3階 | 1R | 34.50㎡ | 146,000円 | 10,000円 | 1ヶ月 | 2ヶ月 |
所在階3階 面積34.50㎡ 間取り1R 賃料 146,000円
|
管理費10,000円 敷金1ヶ月 礼金2ヶ月 |
♥ お問い合わせ
|
♥お気に入り お問い合わせ |
![]() |
7階 | 1LDK | 40.91㎡ | 178,000円 | 10,000円 | 1ヶ月 | 2ヶ月 |
所在階7階 面積40.91㎡ 間取り1LDK 賃料 178,000円
|
管理費10,000円 敷金1ヶ月 礼金2ヶ月 |
♥ お問い合わせ
|
♥お気に入り お問い合わせ |
掲載情報について
※随時更新を心がけておりますが、掲載している物件が万が一成約している場合もございますので予めご了承下さいませ。
※駐車場・駐輪場・バイク置場の空き状況についてはお問い合わせ下さい。
※ペット飼育やSOHO利用・楽器使用の可否に関しては、建物の管理規約で可能になっていても、お部屋の所有者様によって禁止の場合もございますので御注意下さい。
詳細はメールやお電話にてスタッフまでご相談下さい。
※駐車場・駐輪場・バイク置場の空き状況についてはお問い合わせ下さい。
※ペット飼育やSOHO利用・楽器使用の可否に関しては、建物の管理規約で可能になっていても、お部屋の所有者様によって禁止の場合もございますので御注意下さい。
詳細はメールやお電話にてスタッフまでご相談下さい。







