エルスタンザ文京白山
♥お気に入りエルスタンザ文京白山
♥お気に入り






























エルスタンザ文京白山 10階
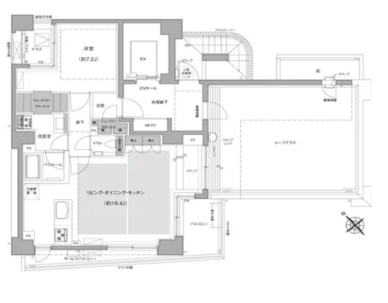
賃料 要問合せ(※) 管理費 敷金 1ヶ月 礼金 0ヶ月 間取り 1LDK 面積 60.27㎡ 階数 10階 状態 要問合せ(※) 入居 要相談 更新料 新賃料の1ヶ月分 諸費用 取引態様 媒介 設備 オートロック、法人契約相談可、宅配BOX、コンビニ近、BS・CS、CATV、インターネット対応、専用ゴミ置場、防犯カメラ、TVモニター付インターホン、分譲賃貸、東京大学自転車圏、エレベーター、明化小学校エリア、10階以上、最上階、ルーフバルコニー、二面採光、日当たり良好、カウンターキッチン、コンロ二口以上、ガスキッチン、システムキッチン、エアコン、フローリング、独立洗面台、追い焚き機能、浴室乾燥、ウォシュレット、24時間換気システム、バストイレ別、室内洗濯機置場、床暖房、収納、角部屋、保証会社利用 物件概要
物件名 エルスタンザ文京白山 所在地 東京都文京区白山4-37-36 最寄駅 都営三田線 白山駅 徒歩7分
都営三田線 千石駅 徒歩7分
学区 明化小学校 構造 RC 階数 地上10階建て 築年月 2018年02月 駐車場 無 備考 詳細閲覧ありがとうございます。最新の空室の確認、内覧のご予約はメール・電話にてお問い合わせください。 文京区の賃貸マンション・賃貸アパートはベステックスにおまかせください! 問合番号 541001 更新日 2022/09/26 このお部屋について
10階、広さ60.27㎡の1LDKタイプのご紹介♪
~おすすめポイント~
LDKは約18.4帖、広々とした空間で充実した生活を送ることが出来ます。
最上階の特権で1フロア1世帯!
日当たりや開放感抜群です!
床暖房、エアコン完備で一年中快適に過ごすことが出来ますよ♪
キッチンはシステムキッチン3口コンロ、グリル付きでシンク・調理スペース共に、
広めの造りですので、家事がしやすい環境です。
カウンターキッチン採用で、
LDK全体を見渡せ、お子様がいらっしゃる方でも安心です☆
食洗器も完備で家事をサポートしてくれます。
水周りはバス・トイレセパレートタイプで独立洗面台も御座います☆
洗濯機置き場はもちろん室内に♪
ミストサウナもバスルームにあります!
洋室は7.2帖で、クローゼットがあります。
お部屋をより有効的にご使用いただけます。
クローゼットはウォークイン・クローゼットだから大容量の収納力です。
玄関も広々とし、シューズinクローゼットがあるので、
玄関口もスッキリと魅せることが出来ます♪
特筆すべきは、最上階の特権!
広々ルーフテラスがあり、
より開放的な空間を演出してくれます☆
分譲マンション【エルスタンザ文京白山】
是非、一度お問い合わせください!掲載情報について
※随時更新を心がけておりますが、掲載している物件が万が一成約している場合もございますので予めご了承下さいませ。
※駐車場・駐輪場・バイク置場の空き状況についてはお問い合わせ下さい。
※ペット飼育やSOHO利用・楽器使用の可否に関しては、建物の管理規約で可能になっていても、お部屋の所有者様によって禁止の場合もございますので御注意下さい。
詳細はメールやお電話にてスタッフまでご相談下さい。エルスタンザ文京白山の周辺地図
最近見た物件
































