パークキューブ春日安藤坂
♥お気に入りパークキューブ春日安藤坂
♥お気に入り










パークキューブ春日安藤坂 10階
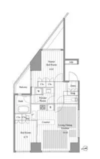
賃料 要問合せ(※) 管理費 敷金 2ヶ月 礼金 0ヶ月 間取り 2LDK 面積 57.04㎡ 階数 10階 状態 要問合せ(※) 入居 即入居可 更新料 新賃料の1ヶ月分 諸費用 取引態様 媒介 設備 デザイナーズ、オートロック、駐輪場有、宅配BOX、コンビニ近、BS・CS、光ファイバー、インターネット対応、専用ゴミ置場、防犯カメラ、TVモニター付インターホン、分譲賃貸、東京大学自転車圏、礼金なし、ペット可、エレベーター、金富小学校エリア、10階以上、南向き、二面採光、コンロ二口以上、ガスキッチン、エアコン、フローリング、独立洗面台、追い焚き機能、浴室乾燥、ウォシュレット、バストイレ別、室内洗濯機置場、床暖房、収納、角部屋、2人入居可、保証会社利用、法人契約相談可 物件概要
物件名 パークキューブ春日安藤坂 所在地 東京都文京区春日2丁目2-6 最寄駅 東京メトロ丸ノ内線 後楽園駅 徒歩9分
JR中央・総武線 飯田橋駅 徒歩10分
都営三田線 春日駅 徒歩10分
学区 金富小学校 構造 SRC 階数 地上15階建て 築年月 2005年10月 駐車場 要空き確認:44,000円/月(税込) 備考 パークキューブ春日安藤坂の賃貸マンション情報です♪ ※写真は同マンション他タイプのものになります。 詳細閲覧ありがとうございます。最新の空室の確認、内覧のご予約はメール・電話にてお問い合わせください。 文京区の賃貸マンション・賃貸アパートはベステックスにおまかせください! 問合番号 730 更新日 2013/06/16 このお部屋について
15階建ての10階のお部屋です。高級賃貸デザイナーズマンションの『パークキューブ春日安藤坂(旧名:チェスターコート春日安藤坂)』に2LDKのお部屋の募集が出ました!!礼金0ヶ月キャンペーン中(条件あり)!!広々リビングに床暖房有。追炊き付きオートバス・シャワー・3口ガスコンロキッチンなどうれしい設備充実のマンションです♪ペット飼育も相談可能です(敷金3ヶ月)!!駐輪場(有料)・原付バイク置場(有料)あります■文京区の高級賃貸マンションはベステックスにお任せください!!掲載情報について
※随時更新を心がけておりますが、掲載している物件が万が一成約している場合もございますので予めご了承下さいませ。
※駐車場・駐輪場・バイク置場の空き状況についてはお問い合わせ下さい。
※ペット飼育やSOHO利用・楽器使用の可否に関しては、建物の管理規約で可能になっていても、お部屋の所有者様によって禁止の場合もございますので御注意下さい。
詳細はメールやお電話にてスタッフまでご相談下さい。パークキューブ春日安藤坂の周辺地図
似た条件の物件
最近見た物件
















