パークアクシス文京ステージ
♥お気に入りパークアクシス文京ステージ
♥お気に入り

洋室1

洋室2

収納

キッチン

独立洗面台

パークアクシス文京ステージ 1階
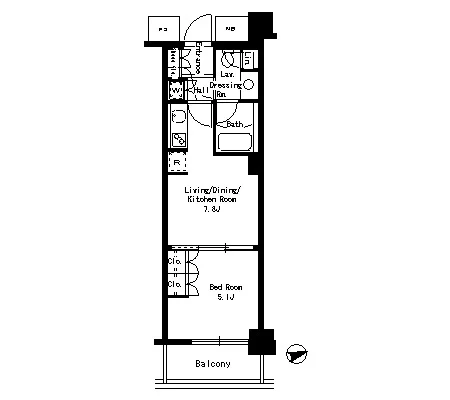
賃料 要問合せ(※) 管理費 敷金 1ヶ月 礼金 1ヶ月 間取り 1DK 面積 30.87㎡ 階数 1階 状態 要問合せ(※) 入居 相談 更新料 新賃料の1ヵ月分 諸費用 取引態様 媒介 設備 オートロック、駐車場有、駐輪場有、宅配BOX、コンビニ近、BS・CS、CATV、光ファイバー、インターネット対応、専用ゴミ置場、防犯カメラ、TVモニター付インターホン、東京大学自転車圏、礼金なし、ペット可、エレベーター、金富小学校エリア、1階、コンロ二口以上、ガスキッチン、システムキッチン、エアコン、フローリング、独立洗面台、追い焚き機能、浴室乾燥、ウォシュレット、バストイレ別、室内洗濯機置場、収納、礼金1以下、楽器相談可、法人契約相談可 物件概要
物件名 パークアクシス文京ステージ 所在地 東京都文京区水道2-4-12 最寄駅 東京メトロ有楽町線 江戸川橋駅 徒歩5分
東京メトロ東西線 神楽坂駅 徒歩10分
東京メトロ丸ノ内線 茗荷谷駅 徒歩13分
学区 金富小学校 構造 RC 階数 地上11階建て 築年月 2005年09月 駐車場 有(条件相談) 備考 【パークアクシス文京ステージの賃貸マンション情報です♪】お部屋の写真は同建物の異なるタイプの写真です。ご参考に掲載しております。 詳細閲覧ありがとうございます。最新の空室の確認、内覧のご予約はメール・電話にてお問い合わせください。 文京区の賃貸マンション・賃貸アパートはベステックスにおまかせください! 問合番号 198869 更新日 2020/03/26 このお部屋について
1階部分で、30.87㎡の1LDKタイプのお部屋のご紹介です。
~ここがおススメポイント~
①追い焚き、浴室乾燥と充実したバスルーム設備が御座います。
②広さ7.8帖のDKと5.1帖の洋室は仕切りを開けておくことで開放感のある空間を演出☆
③ペット、楽器相談可能です♪
※写真は別部屋のものです。掲載情報について
※随時更新を心がけておりますが、掲載している物件が万が一成約している場合もございますので予めご了承下さいませ。
※駐車場・駐輪場・バイク置場の空き状況についてはお問い合わせ下さい。
※ペット飼育やSOHO利用・楽器使用の可否に関しては、建物の管理規約で可能になっていても、お部屋の所有者様によって禁止の場合もございますので御注意下さい。
詳細はメールやお電話にてスタッフまでご相談下さい。パークアクシス文京ステージの周辺地図
似た条件の物件
最近見た物件













_id4810.webp)