ステージグランデ茗荷谷 ~高級分譲賃貸マンション~
♥お気に入りステージグランデ茗荷谷 ~高級分譲賃貸マンション~
♥お気に入り


















ステージグランデ茗荷谷 6階
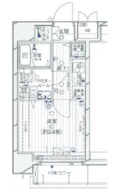
賃料 要問合せ(※) 管理費 敷金 0ヶ月 礼金 1ヶ月 間取り 1K 面積 20.47㎡ 階数 6階 状態 要問合せ(※) 入居 相談 更新料 新賃料の1ヶ月分 諸費用 取引態様 媒介 設備 オートロック、法人契約相談可、駐輪場有、宅配BOX、コンビニ近、BS・CS、CATV、光ファイバー、インターネット対応、防犯カメラ、TVモニター付インターホン、分譲賃貸、エレベーター、2階以上、眺望良好、コンロ二口以上、ガスキッチン、システムキッチン、エアコン、フローリング、独立洗面台、浴室乾燥、ウォシュレット、バストイレ別、室内洗濯機置場、収納、礼金1以下 物件概要
物件名 ステージグランデ茗荷谷 所在地 東京都文京区大塚3丁目42-10 最寄駅 東京メトロ丸ノ内線 茗荷谷駅 徒歩10分
都営三田線 千石駅 徒歩12分
東京メトロ丸ノ内線 新大塚駅 徒歩12分
学区 構造 RC 階数 地上10階建て 築年月 2007年01月 駐車場 無 備考 ◇コンシェルジュ24:16,500円 ◇鍵交換:25,300円 ◇契約事務手数料:11,000円 詳細閲覧ありがとうございます。最新の空室の確認、内覧のご予約はメール・電話にてお問い合わせください。 文京区の賃貸マンション・賃貸アパートはベステックスにおまかせください! 問合番号 198589 更新日 2023/05/28 このお部屋について
文京区大塚3丁目に位置する【ステージグランデ茗荷谷】♪
6階部分のお部屋になります!
分譲仕様のマンションですので、共有部・専有部共に充実の設備が整っており、快適な新生活をサポート致します♪
専有面積は20.47㎡で、使いがっての良い1Kタイプの間取りです。
居室は高級感が有り、お手入れもしやすいオールフローリング仕様で、大きめの収納スペースとバルコニーも完備しております。収納は居室の広さを邪魔しない造りですので荷物に余計な場所をとられることも御座いません。
広さは約5.6帖とお一人暮らしにちょうど良い広さ。
水周りには、料理好きには嬉しい2口ガスコンロ付きのシステムキッチン、浴室には乾燥機能が御座いますので雨の日でも気軽に洗濯が可能、トイレには温水洗浄便座などあると便利な人気設備が揃っております。
共有部にオートロックや防犯カメラ、宅配ボックスを完備しておりますので防犯面でもご安心頂けます!
充実設備の分譲マンション【ステージグランデ茗荷谷】ぜひ一度ご覧ください!!掲載情報について
※随時更新を心がけておりますが、掲載している物件が万が一成約している場合もございますので予めご了承下さいませ。
※駐車場・駐輪場・バイク置場の空き状況についてはお問い合わせ下さい。
※ペット飼育やSOHO利用・楽器使用の可否に関しては、建物の管理規約で可能になっていても、お部屋の所有者様によって禁止の場合もございますので御注意下さい。
詳細はメールやお電話にてスタッフまでご相談下さい。ステージグランデ茗荷谷の周辺地図
似た条件の物件
最近見た物件
























