パークアクシス御茶ノ水ステージ〜楽器可・ペット可・御茶ノ水駅徒歩8分
♥お気に入りパークアクシス御茶ノ水ステージ〜楽器可・ペット可・御茶ノ水駅徒歩8分
♥お気に入り

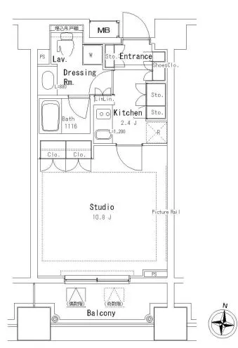
玄関

シューズボックス

シューズボックス

洗面所

トイレ

洗面台

洗面台収納

洗濯機置き場

バスルーム

浴室乾燥

キッチン

キッチン収納

収納

冷蔵庫置き場

居室

居室

クローゼット

TVモニター付きインターホン

バルコニー

パークアクシス御茶ノ水ステージ 9階
賃料 要問合せ(※) 管理費 敷金 1ヶ月 ペット飼育時1ヶ月積増 礼金 1ヶ月 間取り 1K 面積 33.48㎡ 階数 9階 状態 要問合せ(※) 入居 相談 更新料 新賃料の1ヵ月分 諸費用 取引態様 媒介 設備 デザイナーズ、フロントサービス有、オートロック、法人契約相談可、駐車場有、駐輪場有、宅配BOX、コンビニ近、BS・CS、CATV、光ファイバー、インターネット対応、専用ゴミ置場、防犯カメラ、TVモニター付インターホン、分譲賃貸、東京大学徒歩圏、ペット可、エレベーター、湯島小学校エリア、2階以上、眺望良好、南向き、日当たり良好、コンロ二口以上、ガスキッチン、システムキッチン、エアコン、フローリング、独立洗面台、追い焚き機能、浴室乾燥、ウォシュレット、24時間換気システム、バストイレ別、室内洗濯機置場、洗濯機置場あり、床暖房、収納、礼金1以下、保証会社利用、楽器相談可 物件概要
物件名 パークアクシス御茶ノ水ステージ 所在地 東京都文京区湯島3-2-14 最寄駅 JR中央・総武線 御茶ノ水駅 徒歩8分
東京メトロ銀座線 末広町駅 徒歩6分
都営大江戸線 本郷三丁目駅 徒歩8分
学区 湯島小学校 構造 RC 階数 地上13階建て 地下2階 築年月 2006年02月 駐車場 有 ※要空確認 備考 ◇鍵交換費用:16,500円 ◇口座振替事務手数料(月額):110円 ◇保証人 [保証会社]加入要[保証会社名]レジデントアシスタンス株式会社[保証会社利用料]初回保証委託料(最低20,000円):月額賃料等の50%、 2年目以降:9,600円/年 ◇ 詳細閲覧ありがとうございます。最新の空室の確認、内覧のご予約はメール・電話にてお問い合わせください。 文京区の賃貸マンション・賃貸アパートはベステックスにおまかせください! 問合番号 35682453543_912 更新日 2024/11/29 このお部屋について
文京区湯島3丁目に佇むペット対応築浅高級賃貸マンション【パークアクシス御茶ノ水ステージ】♪
9階、1Kタイプのお部屋のご紹介です!
内廊下やフロントなど、一流ホテルのような高級感♪
高級賃貸マンションならではのハイグレード仕様・設備♪
オートロック・TVモニター付インターフォンに加えコンシェルジュ完備で安心のセキュリティ♪
~注目ポイント~
①.洋室は7.1帖で家具の配置がしやすい間取りとなっております♪
②.楽器・ピアノ相談可能と好条件のお部屋です★
③.2口ガスコンロのシステムキッチンで料理も捗ります♪
是非ご覧下さい!!掲載情報について
※随時更新を心がけておりますが、掲載している物件が万が一成約している場合もございますので予めご了承下さいませ。
※駐車場・駐輪場・バイク置場の空き状況についてはお問い合わせ下さい。
※ペット飼育やSOHO利用・楽器使用の可否に関しては、建物の管理規約で可能になっていても、お部屋の所有者様によって禁止の場合もございますので御注意下さい。
詳細はメールやお電話にてスタッフまでご相談下さい。パークアクシス御茶ノ水ステージの周辺地図
似た条件の物件
最近見た物件

























