ラヴェンナ文京富坂 ~複数路線利用可能な好立地物件~
♥お気に入りラヴェンナ文京富坂 ~複数路線利用可能な好立地物件~
♥お気に入り












ラヴェンナ文京富坂 1階
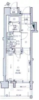
賃料 要問合せ(※) 管理費 敷金 1ヶ月 礼金 0.5ヶ月 間取り 1R 面積 21.33㎡ 階数 1階 状態 要問合せ(※) 入居 相談 更新料 新賃料の1ヶ月分 諸費用 取引態様 媒介 設備 オートロック、駐輪場有、宅配BOX、BS・CS、CATV、インターネット対応、防犯カメラ、TVモニター付インターホン、分譲賃貸、東京大学自転車圏、エレベーター、礫川小学校エリア、1階、ガスキッチン、システムキッチン、エアコン、フローリング、ウォシュレット、バストイレ別、室内洗濯機置場、収納、礼金1以下、法人契約相談可 物件概要
物件名 ラヴェンナ文京富坂 所在地 東京都文京区春日1丁目5-6 最寄駅 東京メトロ丸ノ内線 後楽園駅 徒歩8分
東京メトロ南北線 後楽園駅 徒歩8分
都営大江戸線 春日駅 徒歩8分
学区 礫川小学校 構造 RC 階数 地上7階建て 築年月 2004年04月 駐車場 備考 【ラヴェンナ文京富坂】の賃貸マンション情報!THETAあり。 詳細閲覧ありがとうございます。最新の空室の確認、内覧のご予約はメール・電話にてお問い合わせください。 文京区の賃貸マンション・賃貸アパートはベステックスにおまかせください! 問合番号 06516 更新日 2016/12/08 このお部屋について
充実設備の分譲マンション【ラヴェンナ文京富坂】7階建ての1階部分!
分譲マンションならではの充実設備が整っております♪
お一人暮らしにちょうどいい広さの1Rタイプ!専有面積は21.33㎡です!
約6帖の居室は高級感が有り、お手入れもしやすいオールフローリング仕様で、梁や柱の少ない居室はベッドやテレビ台などの家具の配置をイメージしやすくて使い勝手良好、壁一面を使ったクローゼットを完備しております♪
キッチンには1口コンロ完備でコンパクトなので、お料理好きの方にも嬉しい設備が整っております。
水周りは、浴室とトイレを離して設計するだけでなく、ドラム式洗濯機と独立洗面台完備の洗面室を設けることでゆったりお使い頂け、ストレスを感じさせない造りになっております♪
もちろん、温水洗浄便座など人気の設備が充実!
使い勝手バツグンで、充実設備の分譲マンション【ラヴェンナ文京富坂】ぜひ一度ご覧ください!!掲載情報について
※随時更新を心がけておりますが、掲載している物件が万が一成約している場合もございますので予めご了承下さいませ。
※駐車場・駐輪場・バイク置場の空き状況についてはお問い合わせ下さい。
※ペット飼育やSOHO利用・楽器使用の可否に関しては、建物の管理規約で可能になっていても、お部屋の所有者様によって禁止の場合もございますので御注意下さい。
詳細はメールやお電話にてスタッフまでご相談下さい。ラヴェンナ文京富坂の周辺地図
似た条件の物件
最近見た物件


















