パークアクシス御茶ノ水ステージ〜楽器可・ペット可・御茶ノ水駅徒歩8分
♥お気に入りパークアクシス御茶ノ水ステージ〜楽器可・ペット可・御茶ノ水駅徒歩8分
♥お気に入り







パークアクシス御茶ノ水ステージ 2階
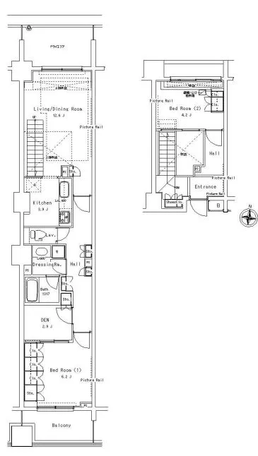
賃料 要問合せ(※) 管理費 敷金 1ヶ月 礼金 1ヶ月 間取り 2SLDK 面積 76.54㎡ 階数 2階 状態 要問合せ(※) 入居 相談 更新料 新賃料の1ヶ月分 諸費用 取引態様 媒介 設備 デザイナーズ、フロントサービス有、オートロック、駐車場有、駐輪場有、宅配BOX、コンビニ近、BS・CS、CATV、光ファイバー、インターネット対応、専用ゴミ置場、防犯カメラ、TVモニター付インターホン、分譲賃貸、東京大学徒歩圏、ペット可、エレベーター、湯島小学校エリア、2階以上、メゾネット、コンロ二口以上、ガスキッチン、システムキッチン、エアコン、フローリング、独立洗面台、追い焚き機能、浴室乾燥、ウォシュレット、バストイレ別、室内洗濯機置場、収納、礼金1以下、2人入居可、楽器相談可、法人契約相談可 物件概要
物件名 パークアクシス御茶ノ水ステージ 所在地 東京都文京区湯島3-2-14 最寄駅 JR中央・総武線 御茶ノ水駅 徒歩8分
東京メトロ銀座線 末広町駅 徒歩6分
都営大江戸線 本郷三丁目駅 徒歩8分
学区 湯島小学校 構造 RC 階数 地上13階建て 地下2階 築年月 2006年02月 駐車場 有 ※要空確認 備考 【パークアクシス御茶ノ水】の賃貸マンション情報です。【株式会社ベステックス】詳細閲覧ありがとうございます。 ※写真は参考にご連絡ください。 問合番号 06516 更新日 2020/11/19 このお部屋について
文京区湯島3丁目に佇むペット対応築浅高級賃貸マンション!
【パークアクシス御茶ノ水ステージ】
内廊下やフロントなど、一流ホテルのような高級感♪
高級賃貸マンションならではのハイグレード仕様・設備♪オートロック・TVモニター付インターフォンに加えコンシェルジュ完備で安心のセキュリティ♪
70平米超の広々2SLDKメゾネットタイプ。
水周り充実!
居室は、約6帖と約4.2帖の2部屋とそれぞれには収納スペースが完備しておりますので荷物に余計なスペースを取られることもございません♪
リビングダイニングは約12.6帖の広さが有りゆったりお使いいただけます。
約2.9帖の納戸も御座いますのでお荷物が多い方も安心です。
キッチンは急な来客も安心の独立型♪
広々個室風に仕切られており、お料理はかどります。ガス3口システムキッチン、シンクもゆったり。
バスルームは、浴室乾燥機・給湯追焚き機能完備です。
【パークアクシス御茶ノ水ステージ】を是非ご覧下さい!!掲載情報について
※随時更新を心がけておりますが、掲載している物件が万が一成約している場合もございますので予めご了承下さいませ。
※駐車場・駐輪場・バイク置場の空き状況についてはお問い合わせ下さい。
※ペット飼育やSOHO利用・楽器使用の可否に関しては、建物の管理規約で可能になっていても、お部屋の所有者様によって禁止の場合もございますので御注意下さい。
詳細はメールやお電話にてスタッフまでご相談下さい。パークアクシス御茶ノ水ステージの周辺地図
似た条件の物件
最近見た物件











