ミリオンプラザお茶の水 ~分譲賃貸マンション~
♥お気に入りミリオンプラザお茶の水 ~分譲賃貸マンション~
♥お気に入り










ミリオンプラザお茶の水 4階
賃料 要問合せ(※) 管理費 敷金 1ヶ月 礼金 1ヶ月 間取り 1K 面積 23.45㎡ 階数 4階 状態 要問合せ(※) 入居 即入居可 更新料 新賃料の1ヶ月分 諸費用 取引態様 媒介 設備 オートロック、法人契約相談可、駐輪場有、宅配BOX、コンビニ近、BS・CS、CATV、光ファイバー、インターネット対応、専用ゴミ置場、防犯カメラ、TVモニター付インターホン、分譲賃貸、東京大学徒歩圏、東京大学自転車圏、エレベーター、湯島小学校エリア、10階以上、眺望良好、コンロ二口以上、ガスキッチン、システムキッチン、エアコン、フローリング、浴室乾燥、ウォシュレット、バストイレ別、室内洗濯機置場、収納、礼金1以下 物件概要
物件名 ミリオンプラザお茶の水 所在地 東京都文京区湯島1-5-33 最寄駅 東京メトロ丸ノ内線 御茶ノ水駅 徒歩5分
JR中央・総武線 御茶ノ水駅 徒歩5分
東京メトロ千代田線 新御茶ノ水駅 徒歩7分
学区 湯島小学校 構造 SRC 階数 地上13階建て 築年月 2004年01月 駐車場 備考 【ミリオンプラザお茶の水】の賃貸マンション情報です。 ※写真は同マンション別タイプのものになります。 詳細閲覧ありがとうございます。最新の空室の確認、内覧のご予約はメール・電話にてお問い合わせください。 文京区の賃貸マンション・賃貸アパートはベステックスにおまかせください! 問合番号 50416 更新日 2022/10/20 このお部屋について
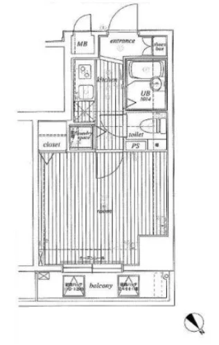
【ミリオンプラザ御茶ノ水】の4階部分、23.45㎡で1Kタイプのお部屋のご紹介です。
南西向きで、お1人暮らしには十分な広さのお部屋となっております。
綺麗な洋室は掃除が簡単なフローリングで、使い勝手良好なお部屋です。室内にはクローゼットが完備されております。
キッチンは2口ガスシステムキッチンとなっております。
調理スペースが確保されており、収納力があるので、食器類や調理器具が多めの方でも安心です。
冷蔵庫置場が廊下部分にあるので居室に持っていく必要がなく、その分余裕を持ってスペースを室内の活用出来ます。
水回りは人気のバストイレ別!
浴室に付いている浴室換気乾燥機は悪天候時も乾燥が容易になり、常に浴室を清潔な状態に保ってくれる便りになる味方です。
トイレに小さな棚が付いているのも心配りがあり嬉しい設備です♪
TVモニター付きインターフォンとオートロックで安心セキュリティ♪女性にオススメ!
※室内写真は同物件別部屋となります。掲載情報について
※随時更新を心がけておりますが、掲載している物件が万が一成約している場合もございますので予めご了承下さいませ。
※駐車場・駐輪場・バイク置場の空き状況についてはお問い合わせ下さい。
※ペット飼育やSOHO利用・楽器使用の可否に関しては、建物の管理規約で可能になっていても、お部屋の所有者様によって禁止の場合もございますので御注意下さい。
詳細はメールやお電話にてスタッフまでご相談下さい。ミリオンプラザお茶の水の周辺地図
似た条件の物件
最近見た物件














