メゾンカルム本郷 ~ 高級賃貸マンション ~
♥お気に入りメゾンカルム本郷 ~ 高級賃貸マンション ~
♥お気に入り










メゾンカルム本郷 4階
賃料 要問合せ(※) 管理費 敷金 1ヶ月 礼金 2ヶ月 間取り 1LDK 面積 53.05㎡ 階数 4階 状態 要問合せ(※) 入居 相談 更新料 新賃料の1ヶ月 諸費用 取引態様 媒介 設備 フロントサービス有、24時間受付管理、オートロック、法人契約相談可、駐車場有、駐輪場有、宅配BOX、コンビニ近、BS・CS、CATV、光ファイバー、インターネット対応、専用ゴミ置場、防犯カメラ、TVモニター付インターホン、東京大学徒歩圏、エレベーター、本郷小学校エリア、2階以上、二面採光、コンロ二口以上、ガスキッチン、システムキッチン、ウォークインクローゼット、エアコン、フローリング、独立洗面台、追い焚き機能、浴室乾燥、ウォシュレット、24時間換気システム、バストイレ別、室内洗濯機置場、洗濯機置場あり、床暖房、収納、角部屋、礼金1以下、2人入居可、保証会社利用
物件概要
物件名 メゾンカルム本郷 所在地 東京都文京区本郷2丁目38-8 最寄駅 東京メトロ丸ノ内線 本郷三丁目駅 徒歩3分
都営三田線 春日駅 徒歩6分
都営大江戸線 本郷三丁目駅 徒歩3分
学区 本郷小学校 構造 RC 階数 地上14階建て 築年月 2010年02月 駐車場 有(要確認) 備考 ◇損害保険:31,000円 ◇保証会社利用必須 ・初回40% ・月額:1% ◇鍵交換費用:24,200円 ◇M-REAL プレミアム会費:16,500円 詳細閲覧ありがとうございます。最新の空室の確認、内覧のご予約はメール・電話にてお問い合わせください。 文京区の賃貸マンション・賃貸アパートはベステックスにおまかせください! 問合番号 4727_402 更新日 2025/01/20 このお部屋について
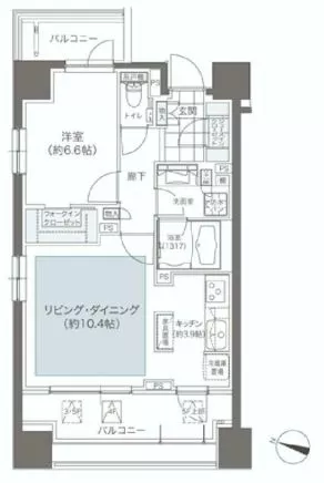
4階部分、53.05㎡、1LDKタイプのご紹介です。
~ここがポイント♪~
①14帖オーバーのゆったりLDK◎
②大人気のウォークインクローゼット完備!
③キッチンはグリル付き3口ガスコンロの高級仕様♪
気になった方はぜひ一度お問い合わせくださいませ。間取図 所在階 間取り 面積 賃料 管理費 敷金 礼金 
4階 1LDK 41.55㎡ 208,000円 10,000円 1ヶ月 2ヶ月 所在階4階
面積41.55㎡
間取り1LDK賃料 208,000円管理費10,000円
敷金1ヶ月
礼金2ヶ月♥
お問い合わせ
♥お気に入り お問い合わせ 
11階 1LDK 41.55㎡ 215,000円 10,000円 1ヶ月 2ヶ月 所在階11階
面積41.55㎡
間取り1LDK賃料 215,000円管理費10,000円
敷金1ヶ月
礼金2ヶ月♥
お問い合わせ
♥お気に入り お問い合わせ 
12階 1LDK 49.34㎡ 236,000円 15,000円 2ヶ月 1ヶ月 所在階12階
面積49.34㎡
間取り1LDK賃料 236,000円管理費15,000円
敷金2ヶ月
礼金1ヶ月♥
お問い合わせ
♥お気に入り お問い合わせ 
13階 1LDK 49.34㎡ 239,000円 15,000円 2ヶ月 1ヶ月 所在階13階
面積49.34㎡
間取り1LDK賃料 239,000円管理費15,000円
敷金2ヶ月
礼金1ヶ月♥
お問い合わせ
♥お気に入り お問い合わせ 掲載情報について
※随時更新を心がけておりますが、掲載している物件が万が一成約している場合もございますので予めご了承下さいませ。
※駐車場・駐輪場・バイク置場の空き状況についてはお問い合わせ下さい。
※ペット飼育やSOHO利用・楽器使用の可否に関しては、建物の管理規約で可能になっていても、お部屋の所有者様によって禁止の場合もございますので御注意下さい。
詳細はメールやお電話にてスタッフまでご相談下さい。メゾンカルム本郷の周辺地図
似た条件の物件
最近見た物件


















本物件周辺は高級分譲エリアとなっております。
また本物件は文京区の中でも人気物件のため動きが非常に早くなっております。
ご希望の際はお早めにお問い合わせくださいませ。
分譲グレードとなりますが大手不動産一棟管理となっております。
LD部分には床暖房、キッチンは3口ガスコンロ、水廻りはすべて独立とハイグレードとなっております。
また楽器相談も可能となっております。
収納は各所にあり居室部分が少し乏しいため追加でご用意いただく必要はあるかと存じます。
アウトフレームのため梁がなくレイアウトはしやすくなっております。
本郷台中学校とは反対のエントランス側、西向きバルコニーとなっております。
ぜひお問い合わせくださいませ。