パークアクシス御茶ノ水ステージ〜楽器可・ペット可・御茶ノ水駅徒歩8分
♥お気に入りパークアクシス御茶ノ水ステージ〜楽器可・ペット可・御茶ノ水駅徒歩8分
♥お気に入り









パークアクシス御茶ノ水ステージ 12階
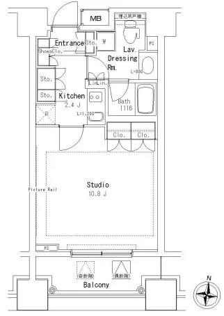
賃料 要問合せ(※) 管理費 敷金 2ヶ月 ペット飼育時、敷金プラス1ヶ月 礼金 1ヶ月 間取り 1K 面積 33.48㎡ 階数 12階 状態 要問合せ(※) 入居 相談 更新料 新賃料の1ヶ月分 諸費用 取引態様 媒介 設備 フロントサービス有、オートロック、バイク置場有、駐車場有、駐輪場有、宅配BOX、コンビニ近、BS・CS、CATV、光ファイバー、インターネット対応、専用ゴミ置場、防犯カメラ、TVモニター付インターホン、東京大学徒歩圏、ペット可、エレベーター、湯島小学校エリア、10階以上、南向き、コンロ二口以上、ガスキッチン、システムキッチン、エアコン、フローリング、独立洗面台、追い焚き機能、浴室乾燥、ウォシュレット、バストイレ別、室内洗濯機置場、床暖房、収納、礼金1以下、楽器相談可、法人契約相談可 物件概要
物件名 パークアクシス御茶ノ水ステージ 所在地 東京都文京区湯島3-2-14 最寄駅 JR中央・総武線 御茶ノ水駅 徒歩8分
東京メトロ銀座線 末広町駅 徒歩6分
都営大江戸線 本郷三丁目駅 徒歩8分
学区 湯島小学校 構造 RC 階数 地上13階建て 地下2階 築年月 2006年02月 駐車場 有 ※要空確認 備考 パークアクシス御茶ノ水ステージの賃貸マンション情報です♪※写真は同建物の別部屋です。 詳細閲覧ありがとうございます。最新の空室の確認、内覧のご予約はメール・電話にてお問い合わせください。 文京区の賃貸マンション・賃貸アパートはベステックスにおまかせください! 問合番号 50416 更新日 2016/04/08 このお部屋について
鉄筋コンクリート造地上15階建て12階の1Kタイプのご紹介!
専有面積は33.48㎡と広いお部屋になっております。
床は人気のフローリングとなっていますのでお手入れも簡単です♪
さらに床暖房完備!
10.8帖の洋室にはクローゼットもありますので荷物に邪魔をされることもなく、
広くお部屋を使うことができますし、居室はシンプルな形をしているので
初めての一人暮らしの方でも安心して頂けます。
~気になる水周り~
キッチンには、2口ガスコンロが備え付けられた、システムキッチンを採用しているので、料理が好きな人や、これから料理に挑戦したい人にオススメです。
バス・トイレが独立しているので、圧迫感がなく使うことができます。
独立洗面台もありますので、朝の身だしなみチェックやお化粧など使い方は様々です♪
さらに、室内洗濯機置き場が付いているので、洗濯機と洗濯物を雨ざらしにすることもありません♪
~セキュリティ~
もちろんオートロック付き♪
管理人も日勤でいますので安心のセキュリティ
是非、お問い合わせください!
※写真は同建物の別部屋です。掲載情報について
※随時更新を心がけておりますが、掲載している物件が万が一成約している場合もございますので予めご了承下さいませ。
※駐車場・駐輪場・バイク置場の空き状況についてはお問い合わせ下さい。
※ペット飼育やSOHO利用・楽器使用の可否に関しては、建物の管理規約で可能になっていても、お部屋の所有者様によって禁止の場合もございますので御注意下さい。
詳細はメールやお電話にてスタッフまでご相談下さい。パークアクシス御茶ノ水ステージの周辺地図
最近見た物件













