マチュリティ小石川
♥お気に入りマチュリティ小石川
♥お気に入り




マチュリティ小石川 5階
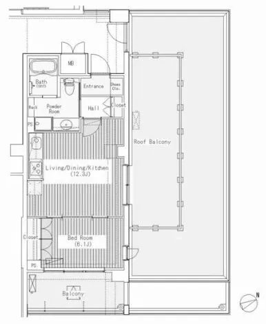
賃料 要問合せ(※) 管理費 敷金 2ヶ月 礼金 1ヶ月 間取り 1LDK 面積 44.25㎡ 階数 5階 状態 要問合せ(※) 入居 相談 更新料 新賃料の1ヵ月分 諸費用 取引態様 媒介 設備 デザイナーズ、オートロック、法人契約相談可、駐車場有、駐輪場有、宅配BOX、BS・CS、CATV、光ファイバー、インターネット対応、専用ゴミ置場、防犯カメラ、TVモニター付インターホン、分譲賃貸、ペット可、エレベーター、金富小学校エリア、ルーフバルコニー、コンロ二口以上、IHキッチン、システムキッチン、エアコン、フローリング、独立洗面台、追い焚き機能、浴室乾燥、ウォシュレット、バストイレ別、室内洗濯機置場、収納、2人入居可、楽器相談可 物件概要
物件名 マチュリティ小石川 所在地 東京都文京区春日2-12-3 最寄駅 東京メトロ丸ノ内線 茗荷谷駅 徒歩11分
東京メトロ南北線 後楽園駅 徒歩11分
都営三田線 春日駅 徒歩11分
学区 金富小学校 構造 RC 階数 地上5階建て 築年月 2006年03月 駐車場 駐車場要確認 備考 【マチュリティ小石川】の賃貸マンション情報!ペット飼育の場合は敷金3ヶ月となります。 ※写真は同マンションの異なるタイプのお部屋です。 詳細閲覧ありがとうございます。最新の空室の確認、内覧のご予約はメール・電話にてお問い合わせください。 文京区の賃貸マンション・賃貸アパートはベステックスにおまかせください! 問合番号 158698 更新日 2024/07/16 このお部屋について
春日2丁目の高台に面した高級賃貸マンション【マチュリティ小石川】の最上階、ルーフバルコニー完備の1LDKタイプのお部屋のご紹介です!
☆本物件のオススメポイント☆
〇最上階ならではの広々としたルーフバルコニー完備です!
〇希少なペット可物件となっており、小型犬or猫の2匹迄ご相談可能です!
〇角部屋の特性を活かした2面採光で通気性も良好です!
以上です。
※写真は同物件別部屋となります。掲載情報について
※随時更新を心がけておりますが、掲載している物件が万が一成約している場合もございますので予めご了承下さいませ。
※駐車場・駐輪場・バイク置場の空き状況についてはお問い合わせ下さい。
※ペット飼育やSOHO利用・楽器使用の可否に関しては、建物の管理規約で可能になっていても、お部屋の所有者様によって禁止の場合もございますので御注意下さい。
詳細はメールやお電話にてスタッフまでご相談下さい。マチュリティ小石川の周辺地図
似た条件の物件
最近見た物件










