SYNEX HON-KOMAGOME【シーネクス本駒込】 ~ペット可高級分譲賃貸マンション~
♥お気に入りSYNEX HON-KOMAGOME【シーネクス本駒込】 ~ペット可高級分譲賃貸マンション~
♥お気に入り











シーネクス本駒込 9階
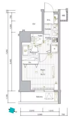
賃料 要問合せ(※) 管理費 敷金 0ヶ月 礼金 1ヶ月 間取り 1K 面積 22.61㎡ 階数 9階 状態 要問合せ(※) 入居 相談 更新料 1ヶ月 諸費用 取引態様 媒介 設備 オートロック、バイク置場有、法人契約相談可、駐輪場有、宅配BOX、コンビニ近、BS・CS、CATV、光ファイバー、インターネット対応、専用ゴミ置場、防犯カメラ、TVモニター付インターホン、分譲賃貸、東京大学徒歩圏、東京大学自転車圏、エレベーター、駒本小学校エリア、2階以上、コンロ二口以上、ガスキッチン、システムキッチン、エアコン、浴室乾燥、ウォシュレット、バストイレ別、室内洗濯機置場、収納、礼金1以下
物件概要
物件名 シーネクス本駒込 所在地 東京都文京区本駒込1丁目28-14 最寄駅 東京メトロ南北線 本駒込駅 徒歩5分
都営三田線 白山駅 徒歩10分
都営三田線 千石駅 徒歩10分
学区 駒本小学校 構造 RC 階数 地上14階建て 築年月 2007年07月 駐車場 無 備考 ◇保険:20,000円/2年 ◇鍵交換:27,500円 ◇入居者サポート:24,200円/2年 ◇ルームクリーニング代:52,800円/退去時 詳細閲覧ありがとうございます。最新の空室の確認、内覧のご予約はメール・電話にてお問い合わせください。 文京区の賃貸マンション・賃貸アパートはベステックスにおまかせください! 問合番号 4845-902 更新日 2024/11/24 このお部屋について
9階、22.61㎡、1Kタイプの物件紹介!ビジネスパーソンや学生におススメ!
①バストイレ別!
②ペット要相談!
③外国籍相談可!
気になった方はぜひご連絡ください!掲載情報について
※随時更新を心がけておりますが、掲載している物件が万が一成約している場合もございますので予めご了承下さいませ。
※駐車場・駐輪場・バイク置場の空き状況についてはお問い合わせ下さい。
※ペット飼育やSOHO利用・楽器使用の可否に関しては、建物の管理規約で可能になっていても、お部屋の所有者様によって禁止の場合もございますので御注意下さい。
詳細はメールやお電話にてスタッフまでご相談下さい。シーネクス本駒込の周辺地図
似た条件の物件
最近見た物件


















居室の広さは6.7帖。
クローゼットが完備されておりますので、荷物にスペースを取られず居室本来の広さをお使いいただけます。
室内にはエアコンが既に設置されておりますので、
1年通して快適にお過ごし頂けます。
また、室内から来訪者を確認することができるTVモニター付きインターホンも完備されておりますので、オートロックと併せてセキュリティ面安心です♪
キッチンは人気のシステムキッチン仕様。
料理好きには嬉しい2口コンロが完備されております。
バス・トイレはもちろん別、水回りをゆったりとお使い頂けます。
浴室には天気・時間帯関係なく洗濯物の乾燥が可能な浴室暖房換気乾燥機が備わっておりますので重宝しますよ♪
トイレはウォシュレット完備♪
洗濯機置場は室内にございますので、雨に濡れることなくより長く清潔にお使い頂けます。
是非お気軽にお問い合わせください!!
※写真は同物件の別部屋のものです。