パークアクシス御茶ノ水ステージ〜楽器可・ペット可・御茶ノ水駅徒歩8分
♥お気に入りパークアクシス御茶ノ水ステージ〜楽器可・ペット可・御茶ノ水駅徒歩8分
♥お気に入り


















パークアクシス御茶ノ水ステージ 14階
賃料 要問合せ(※) 管理費 敷金 1ヶ月 礼金 0ヶ月 間取り 1LDK 面積 40.61㎡ 階数 14階 状態 要問合せ(※) 入居 相談 更新料 新賃料の1ヶ月分 諸費用 取引態様 媒介 設備 デザイナーズ、フロントサービス有、オートロック、駐車場有、駐輪場有、宅配BOX、コンビニ近、BS・CS、CATV、光ファイバー、インターネット対応、専用ゴミ置場、防犯カメラ、TVモニター付インターホン、分譲賃貸、東京大学徒歩圏、ペット可、エレベーター、湯島小学校エリア、10階以上、眺望良好、コンロ二口以上、ガスキッチン、システムキッチン、ウォークインクローゼット、エアコン、フローリング、独立洗面台、追い焚き機能、浴室乾燥、ウォシュレット、バストイレ別、室内洗濯機置場、床暖房、収納、角部屋、2人入居可、楽器相談可、法人契約相談可 物件概要
物件名 パークアクシス御茶ノ水ステージ 所在地 東京都文京区湯島3-2-14 最寄駅 JR中央・総武線 御茶ノ水駅 徒歩8分
東京メトロ銀座線 末広町駅 徒歩6分
都営大江戸線 本郷三丁目駅 徒歩8分
学区 湯島小学校 構造 RC 階数 地上13階建て 地下2階 築年月 2006年02月 駐車場 有 ※要空確認 備考 パークアクシス御茶ノ水ステージの賃貸マンション情報です♪ 詳細閲覧ありがとうございます。最新の空室の確認、内覧のご予約はメール・電話にてお問い合わせください。 文京区の賃貸マンション・賃貸アパートはベステックスにおまかせください! 問合番号 4626 更新日 2021/07/05 このお部屋について
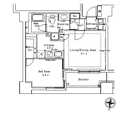
文京区湯島3丁目にある賃貸マンション【パークアクシス御茶ノ水】の13階、1LDKタイプのお部屋のご紹介です♪エアコンと床暖房が完備されているので、どの季節でも快適にお過ごしになれます!
5.4帖ある洋間は、フローリングでお手入れ簡単!ほぼ正方形のお部屋で、クローゼットが2つ設備されてるので、家具の配置も自由に決めることができ、部屋本来の広さをお使いになれます♪リビングも広々8.1帖!
水周りは、風呂・トイレ別!お風呂には浴室乾燥機が完備されているので、浴室のカビ防止だけでなく、悪天候時でも、気にせず洗濯物を乾かすことができます♪トイレは、温水洗浄機能や乾燥機能がついたシャワートイレとなっているので、快適にお過ごしになれます!
嬉しいペット相談可!(小型犬二匹まで猫不可)ピアノもご相談出来ます♪
トランクルーム(5000円)もお使いになれるので、荷物の多い方や旅行好きの方にもオススメの物件になっております!
是非一度ご覧ください!掲載情報について
※随時更新を心がけておりますが、掲載している物件が万が一成約している場合もございますので予めご了承下さいませ。
※駐車場・駐輪場・バイク置場の空き状況についてはお問い合わせ下さい。
※ペット飼育やSOHO利用・楽器使用の可否に関しては、建物の管理規約で可能になっていても、お部屋の所有者様によって禁止の場合もございますので御注意下さい。
詳細はメールやお電話にてスタッフまでご相談下さい。パークアクシス御茶ノ水ステージの周辺地図
似た条件の物件
最近見た物件























