クライムマリー
♥お気に入りクライムマリー
♥お気に入り
クライムマリー 2階
| 賃料 | 要問合せ(※) | 管理費 | |
|---|---|---|---|
| 敷金 | 1ヶ月 | 礼金 | 1.5ヶ月 |
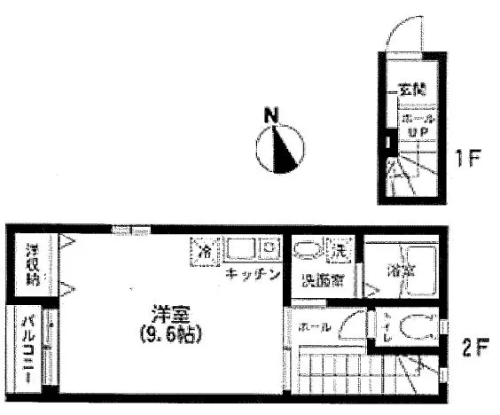
| 間取り | 1R | 面積 | 31.24㎡ |
| 階数 | 2階 | 状態 | 要問合せ(※) |
| 入居 | 相談 | 更新料 | 新賃料の1ヶ月分 |
| 諸費用 | 取引態様 | 媒介 | |
| 設備 | コンビニ近、TVモニター付インターホン、東京大学徒歩圏、東京大学自転車圏、湯島小学校エリア、2階以上、二面採光、IHキッチン、システムキッチン、エアコン、フローリング、独立洗面台、浴室乾燥、バストイレ別、室内洗濯機置場、洗濯機置場あり、収納、角部屋、礼金1以下、保証会社利用、法人契約相談可 | ||
物件概要
| 物件名 | クライムマリー | ||
|---|---|---|---|
| 所在地 | 東京都文京区湯島2-8-7 | ||
| 最寄駅 |
東京メトロ千代田線 湯島駅 徒歩8分 東京メトロ丸ノ内線 御茶ノ水駅 徒歩8分 東京メトロ銀座線 末広町駅 徒歩8分 |
||
| 学区 | 湯島小学校 | 構造 | 軽量鉄骨 |
| 階数 | 地上2階建て | 築年月 | 2013年12月 |
| 駐車場 | |||
| 備考 | 文京区湯島2丁目に御座います【クライムマリー】のご紹介です♪※保証会社必須 詳細閲覧ありがとうございます。最新の空室の確認、内覧のご予約はメール・電話にてお問い合わせください。 文京区の賃貸マンション・賃貸アパートはベステックスにおまかせください! | ||
| 問合番号 | 20210809-201 | ||
| 更新日 | 2021/08/09 | ||
このお部屋について
2階部分、専有面積31.24㎡、1Rタイプのご紹介。
~ここがポイント~
①独立洗面台付き
水回りはすべて独立!使い勝手◎
②角部屋
主要採光は西向き♪
③広めの洋室
キッチン含む約9.6帖の広めの洋室
気になる方はぜひ【ベステックス】へ!
ご相談もお待ちしております!
~ここがポイント~
①独立洗面台付き
水回りはすべて独立!使い勝手◎
②角部屋
主要採光は西向き♪
③広めの洋室
キッチン含む約9.6帖の広めの洋室
気になる方はぜひ【ベステックス】へ!
ご相談もお待ちしております!
掲載情報について
※随時更新を心がけておりますが、掲載している物件が万が一成約している場合もございますので予めご了承下さいませ。
※駐車場・駐輪場・バイク置場の空き状況についてはお問い合わせ下さい。
※ペット飼育やSOHO利用・楽器使用の可否に関しては、建物の管理規約で可能になっていても、お部屋の所有者様によって禁止の場合もございますので御注意下さい。
詳細はメールやお電話にてスタッフまでご相談下さい。
※駐車場・駐輪場・バイク置場の空き状況についてはお問い合わせ下さい。
※ペット飼育やSOHO利用・楽器使用の可否に関しては、建物の管理規約で可能になっていても、お部屋の所有者様によって禁止の場合もございますので御注意下さい。
詳細はメールやお電話にてスタッフまでご相談下さい。




