SYNEX HON-KOMAGOME【シーネクス本駒込】 ~ペット可高級分譲賃貸マンション~
♥お気に入りSYNEX HON-KOMAGOME【シーネクス本駒込】 ~ペット可高級分譲賃貸マンション~
♥お気に入り














シーネクス本駒込 2階
賃料 要問合せ(※) 管理費 敷金 1ヶ月 ペット可(2ヶ月) 礼金 1ヶ月 間取り 1K 面積 27.60㎡ 階数 2階 状態 要問合せ(※) 入居 即入居可 更新料 新賃料の1.0ヶ月分 諸費用 取引態様 媒介 設備 オートロック、バイク置場有、駐車場有、駐輪場有、宅配BOX、コンビニ近、BS・CS、CATV、光ファイバー、インターネット対応、防犯カメラ、TVモニター付インターホン、分譲賃貸、東京大学自転車圏、ペット可、エレベーター、駒本小学校エリア、2階以上、コンロ二口以上、ガスキッチン、システムキッチン、エアコン、フローリング、独立洗面台、浴室乾燥、ウォシュレット、バストイレ別、室内洗濯機置場、収納、礼金1以下、法人契約相談可 物件概要
物件名 シーネクス本駒込 所在地 東京都文京区本駒込1丁目28-14 最寄駅 本駒込駅 徒歩5分
千石駅 徒歩10分
白山駅 徒歩10分
学区 駒本小学校 構造 RC 階数 地上14階建て 築年月 2007年07月 駐車場 無 備考 メインステージ本駒込の賃貸マンション情報です♪ THETAあり。 詳細閲覧ありがとうございます。最新の空室の確認、内覧のご予約はメール・電話にてお問い合わせください。 文京区の賃貸マンション・賃貸アパートはベステックスにおまかせください! 問合番号 747572 更新日 2016/12/08 このお部屋について
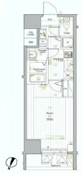
【シーネクス本駒込】2階部分、27.60㎡、1Kタイプのお部屋のご紹介です☆
清潔で綺麗なお部屋☆収納スペースも広めに確保されている点も魅力的☆
扉で完全に仕切られてるキッチンのため、調理の匂いも気になりません☆独立洗面台もあり、日々の身支度も快適に☆
その他にもエアコン、TVモニター付インターホン、2口システムキッチン、ウォシュレット、浴室乾燥機完備の充実設備☆
女性の方でも心地良くお住まい頂けるお部屋です☆
また、ペットも相談可です!
お気軽にお問い合わせください♪掲載情報について
※随時更新を心がけておりますが、掲載している物件が万が一成約している場合もございますので予めご了承下さいませ。
※駐車場・駐輪場・バイク置場の空き状況についてはお問い合わせ下さい。
※ペット飼育やSOHO利用・楽器使用の可否に関しては、建物の管理規約で可能になっていても、お部屋の所有者様によって禁止の場合もございますので御注意下さい。
詳細はメールやお電話にてスタッフまでご相談下さい。シーネクス本駒込の周辺地図
似た条件の物件
最近見た物件




















