プレミアステージ湯島
♥お気に入りプレミアステージ湯島
♥お気に入り
プレミアステージ湯島 3階
| 賃料 | 要問合せ(※) | 管理費 | |
|---|---|---|---|
| 敷金 | 1ヶ月 | 礼金 | 0ヶ月 |
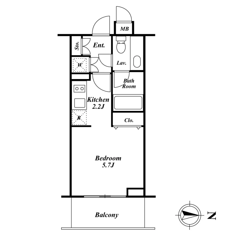
| 間取り | 1R | 面積 | 22.49㎡ |
| 階数 | 3階 | 状態 | 要問合せ(※) |
| 入居 | 相談 | 更新料 | 新賃料の1か月分 |
| 諸費用 | 取引態様 | 媒介 | |
| 設備 | オートロック、法人契約相談可、駐車場有、駐輪場有、宅配BOX、コンビニ近、BS・CS、CATV、光ファイバー、インターネット対応、専用ゴミ置場、防犯カメラ、TVモニター付インターホン、東京大学自転車圏、エレベーター、湯島小学校エリア、2階以上、コンロ二口以上、ガスキッチン、システムキッチン、エアコン、フローリング、独立洗面台、浴室乾燥、ウォシュレット、24時間換気システム、バストイレ別、室内洗濯機置場、収納、保証会社利用 | ||
物件概要
| 物件名 | プレミアステージ湯島 | ||
|---|---|---|---|
| 所在地 | 東京都文京区湯島3-16-11 | ||
| 最寄駅 |
東京メトロ千代田線 湯島駅 徒歩1分 東京メトロ銀座線 末広町駅 徒歩6分 都営大江戸線 上野御徒町駅 徒歩6分 |
||
| 学区 | 湯島小学校 | 構造 | SRC |
| 階数 | 地上14階建て | 築年月 | 2006年03月 |
| 駐車場 | 機械式 L4900 W1800 H1550 1700KG 空き要確認 | ||
| 備考 | ◇保証会社利用必須 ◇保険加入必須 詳細閲覧ありがとうございます。最新の空室の確認、内覧のご予約はメール・電話にてお問い合わせください。 文京区の賃貸マンション・賃貸アパートはベステックスにおまかせください! | ||
| 問合番号 | 958741-302 | ||
| 更新日 | 2024/12/20 | ||
このお部屋について
都心の利便性と下町風情を併せ持った街、湯島に住む。
【プレミアステージ湯島】の賃貸マンション情報です。
3階・22.49㎡の1Rタイプ。
2口ガスシステムキッチン・ウォシュレット・室内洗濯機置場など快適な生活をサポートする充実の設備。鉄筋鉄骨コンクリート造14階建ての2006年築。駐車場(要空確認)・駐輪場完備。TVモニター付オートロックシステム・宅配ボックス・ディンプル式玄関キー採用でセキュリティ安心。管理人日勤管理で管理体制良好。BS/CS/CATV・インターネット専用回線完備。全室照明器具付き。
是非ご内覧ください。
【プレミアステージ湯島】の賃貸マンション情報です。
3階・22.49㎡の1Rタイプ。
2口ガスシステムキッチン・ウォシュレット・室内洗濯機置場など快適な生活をサポートする充実の設備。鉄筋鉄骨コンクリート造14階建ての2006年築。駐車場(要空確認)・駐輪場完備。TVモニター付オートロックシステム・宅配ボックス・ディンプル式玄関キー採用でセキュリティ安心。管理人日勤管理で管理体制良好。BS/CS/CATV・インターネット専用回線完備。全室照明器具付き。
是非ご内覧ください。
掲載情報について
※随時更新を心がけておりますが、掲載している物件が万が一成約している場合もございますので予めご了承下さいませ。
※駐車場・駐輪場・バイク置場の空き状況についてはお問い合わせ下さい。
※ペット飼育やSOHO利用・楽器使用の可否に関しては、建物の管理規約で可能になっていても、お部屋の所有者様によって禁止の場合もございますので御注意下さい。
詳細はメールやお電話にてスタッフまでご相談下さい。
※駐車場・駐輪場・バイク置場の空き状況についてはお問い合わせ下さい。
※ペット飼育やSOHO利用・楽器使用の可否に関しては、建物の管理規約で可能になっていても、お部屋の所有者様によって禁止の場合もございますので御注意下さい。
詳細はメールやお電話にてスタッフまでご相談下さい。






