パークアクシス御茶ノ水ステージ〜楽器可・ペット可・御茶ノ水駅徒歩8分
♥お気に入りパークアクシス御茶ノ水ステージ〜楽器可・ペット可・御茶ノ水駅徒歩8分
♥お気に入り










パークアクシス御茶ノ水ステージ 7階
賃料 要問合せ(※) 管理費 敷金 1ヶ月 礼金 1ヶ月 間取り 1LDK 面積 44.57㎡ 階数 7階 状態 要問合せ(※) 入居 要相談 更新料 新賃料の1ヶ月分 諸費用 取引態様 媒介 設備 デザイナーズ、フロントサービス有、オートロック、法人契約相談可、駐車場有、駐輪場有、宅配BOX、コンビニ近、BS・CS、CATV、光ファイバー、インターネット対応、専用ゴミ置場、防犯カメラ、TVモニター付インターホン、分譲賃貸、東京大学徒歩圏、ペット可、エレベーター、湯島小学校エリア、2階以上、南向き、コンロ二口以上、ガスキッチン、システムキッチン、エアコン、フローリング、独立洗面台、追い焚き機能、浴室乾燥、ウォシュレット、バストイレ別、室内洗濯機置場、床暖房、収納、礼金1以下、2人入居可、保証会社利用、楽器相談可
物件概要
物件名 パークアクシス御茶ノ水ステージ 所在地 東京都文京区湯島3-2-14 最寄駅 JR中央・総武線 御茶ノ水駅 徒歩8分
東京メトロ銀座線 末広町駅 徒歩6分
都営大江戸線 本郷三丁目駅 徒歩8分
学区 湯島小学校 構造 RC 階数 地上13階建て 地下2階 築年月 2006年02月 駐車場 有 ※要空確認 備考 ◆火災保険は貸主指定の保険会社にご加入頂きます ◆鍵交換 16500円 ◆口座振替事務手数料 月額110円 ◆保証会社必須:レジデンタシスタンス株式会社(初回保証委託料(最低20000円)、月額賃料等の50%、 1年目以降:9600円/年) ◆ペット飼育相談可能(小型犬2匹まで・猫不可/飼育時、敷金1ヶ月積み増し) ◆ピアノ相談可能 ◆ 詳細閲覧ありがとうございます。最新の空室の確認、内覧のご予約はメール・電話にてお問い合わせください。 文京区の賃貸マンション・賃貸アパートはベステックスにおまかせください! 問合番号 35682453543_704 更新日 2024/07/04 このお部屋について
コンシェルジュ付き賃貸マンション【パークアクシス御茶ノ水ステージ】の7階部分のご紹介です。
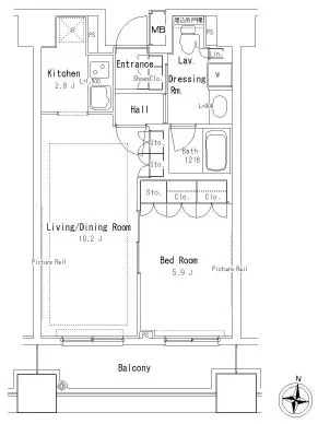
専有面積:44.57㎡の1LDKタイプです。
♪注目ポイント♪
①洋室は広々5.9帖♪収納もたっぷり♪リビング部分は10.2帖あり、床暖房完備です。
②主要採光面は南向きとなっております♪
③追い焚き、浴室乾燥機などお部屋内の設備も充実♪またペットの飼育、ピアノの演奏も相談可となっております!
是非お気軽にお問い合わせください。掲載情報について
※随時更新を心がけておりますが、掲載している物件が万が一成約している場合もございますので予めご了承下さいませ。
※駐車場・駐輪場・バイク置場の空き状況についてはお問い合わせ下さい。
※ペット飼育やSOHO利用・楽器使用の可否に関しては、建物の管理規約で可能になっていても、お部屋の所有者様によって禁止の場合もございますので御注意下さい。
詳細はメールやお電話にてスタッフまでご相談下さい。パークアクシス御茶ノ水ステージの周辺地図
似た条件の物件
最近見た物件

















本物件は7階部分、44.57㎡、1LDKとなります。
本物件は文京区内でも最大級の戸数を誇る大型マンションとなります。
コンシェルジュもいるため共用設備も充実しております。
間取りは単身用~ファミリータイプまでございます。
珍しく、LD部分に人気の床暖房もございます!!!
追い炊き機能もあるためお忙しい方やおふたり入居の方にもオススメとなっております。
お部屋はアウトフレーム工法のため梁がなくレイアウトしやすい間取りとなっております。
また南向きバルコニーのため採光があり明るくお過ごしいただけます!
水廻りはすべて独立でして独立洗面台完備!
ぜひお問い合わせくださいませ。