東急ドエル・アルス音羽Ⅱ
♥お気に入り東急ドエル・アルス音羽Ⅱ
♥お気に入り
東急ドエル・アルス音羽Ⅱ 4階
| 賃料 | 要問合せ(※) | 管理費 | |
|---|---|---|---|
| 敷金 | 1ヶ月 | 礼金 | 1ヶ月 |
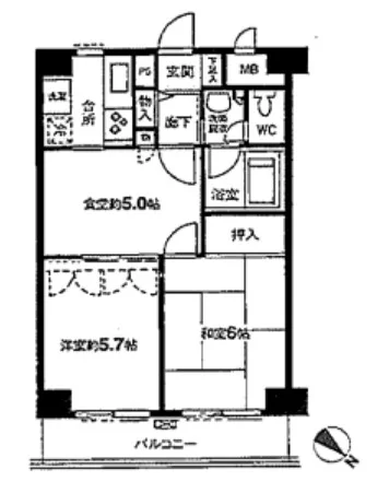
| 間取り | 2DK | 面積 | 43.95㎡ |
| 階数 | 4階 | 状態 | 要問合せ(※) |
| 入居 | 相談 | 更新料 | 新賃料の1ヶ月 |
| 諸費用 | 取引態様 | 媒介 | |
| 設備 | オートロック、法人契約相談可、駐輪場有、光ファイバー、インターネット対応、分譲賃貸、エレベーター、関口台町小学校エリア、2階以上、コンロ二口以上、システムキッチン、エアコン、独立洗面台、バストイレ別、収納、角部屋、礼金1以下、2人入居可 | ||
物件概要
| 物件名 | 東急ドエル・アルス音羽Ⅱ | ||
|---|---|---|---|
| 所在地 | 東京都文京区音羽1丁目22-18 | ||
| 最寄駅 |
東京メトロ有楽町線 江戸川橋駅 徒歩5分 |
||
| 学区 | 関口台町小学校 | 構造 | SRC |
| 階数 | 地上11階建て | 築年月 | 1986年09月 |
| 駐車場 | |||
| 備考 | 東急ドエル・アルス音羽2の分譲賃貸マンション情報です。 詳細閲覧ありがとうございます。最新の空室の確認、内覧のご予約はメール・電話にてお問い合わせください。 文京区の賃貸マンション・賃貸アパートはベステックスにおまかせください! | ||
| 問合番号 | 56598 | ||
| 更新日 | 2022/10/30 | ||
このお部屋について
【東急ドエル・アルス音羽2】の4階の2DKタイプのお部屋のご紹介です。≪設備≫ バス・トイレ別 エアコン 光ファイバー システムキッチン (2口ガスコンロ) 洗面台 押入れ。振分タイプの間取りです。角部屋の為風通し良好。有楽町線江戸川橋駅・護国寺駅の2駅利用可能です。是非、一度ご覧下さい。
掲載情報について
※随時更新を心がけておりますが、掲載している物件が万が一成約している場合もございますので予めご了承下さいませ。
※駐車場・駐輪場・バイク置場の空き状況についてはお問い合わせ下さい。
※ペット飼育やSOHO利用・楽器使用の可否に関しては、建物の管理規約で可能になっていても、お部屋の所有者様によって禁止の場合もございますので御注意下さい。
詳細はメールやお電話にてスタッフまでご相談下さい。
※駐車場・駐輪場・バイク置場の空き状況についてはお問い合わせ下さい。
※ペット飼育やSOHO利用・楽器使用の可否に関しては、建物の管理規約で可能になっていても、お部屋の所有者様によって禁止の場合もございますので御注意下さい。
詳細はメールやお電話にてスタッフまでご相談下さい。




