OLIO湯島 ~分譲賃貸マンション~
♥お気に入りOLIO湯島 ~分譲賃貸マンション~
♥お気に入り
OLIO湯島【オリオ湯島】 7階
| 賃料 | 要問合せ(※) | 管理費 | |
|---|---|---|---|
| 敷金 | 1ヶ月 (敷金退去時償却) | 礼金 | 1ヶ月 |
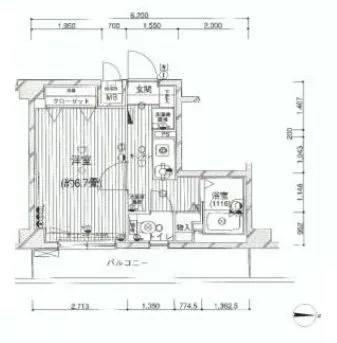
| 間取り | 1K | 面積 | 24.15㎡ |
| 階数 | 7階 | 状態 | 要問合せ(※) |
| 入居 | 12月23日退去予定 | 更新料 | 新賃料の1ヶ月分+更新事務手数料 |
| 諸費用 | 取引態様 | 媒介 | |
| 設備 | オートロック、駐輪場有、宅配BOX、コンビニ近、BS・CS、CATV、光ファイバー、インターネット対応、TVモニター付インターホン、分譲賃貸、東京大学徒歩圏、東京大学自転車圏、エレベーター、湯島小学校エリア、2階以上、ガスキッチン、システムキッチン、エアコン、フローリング、バストイレ別、室内洗濯機置場、収納、礼金1以下、法人契約相談可 | ||
物件概要
| 物件名 | OLIO湯島【オリオ湯島】 | ||
|---|---|---|---|
| 所在地 | 東京都文京区湯島3丁目27-14 | ||
| 最寄駅 |
東京メトロ千代田線 湯島駅 徒歩2分 東京メトロ丸ノ内線 御茶ノ水駅 徒歩13分 |
||
| 学区 | 湯島小学校 | 構造 | RC |
| 階数 | 地上9階建て | 築年月 | 2004年02月 |
| 駐車場 | |||
| 備考 | 【OLIO湯島】の賃貸マンション情報! 詳細閲覧ありがとうございます。最新の空室の確認、内覧のご予約はメール・電話にてお問い合わせください。 文京区の賃貸マンション・賃貸アパートはベステックスにおまかせください! | ||
| 問合番号 | 989413 | ||
| 更新日 | 2017/12/05 | ||
このお部屋について
文京区湯島3丁目にある分譲賃貸マンション【OLIO湯島(オリオ湯島)】の7階、1K階のお部屋のご紹介です。
共用部には、カラーTVモニター付オートロックが備わっており来客時に相手の顔を確認することができ安心の防犯性能です。宅配BOXがあるので留守の際の宅配を夜間でも受け取ることができます。
居室は約6.7畳の洋室で東向きのバルコニーに面した窓があるので、朝方に外の光を取り込むことができるのでスッキリとした朝を迎えることができます。
クローゼットが備わっているので、コートやスーツなどの衣類や掃除機などの家電をしまうことができ、お部屋のスペースを無駄なくお使え頂けます。
キッチンは1口ガスコンロが備わっており自炊の際に役立ちます。
収納もあるので調理器具や保存食などをしまうことができて便利!
バス・トイレは別々で浴室には洗顔や手洗いなどで役立つ洗面台を完備。
洗濯機置き場が室内にあるので洗濯機が雨風にさらされない分、長く清潔にお使い頂けます。
是非一度ご覧ください!
共用部には、カラーTVモニター付オートロックが備わっており来客時に相手の顔を確認することができ安心の防犯性能です。宅配BOXがあるので留守の際の宅配を夜間でも受け取ることができます。
居室は約6.7畳の洋室で東向きのバルコニーに面した窓があるので、朝方に外の光を取り込むことができるのでスッキリとした朝を迎えることができます。
クローゼットが備わっているので、コートやスーツなどの衣類や掃除機などの家電をしまうことができ、お部屋のスペースを無駄なくお使え頂けます。
キッチンは1口ガスコンロが備わっており自炊の際に役立ちます。
収納もあるので調理器具や保存食などをしまうことができて便利!
バス・トイレは別々で浴室には洗顔や手洗いなどで役立つ洗面台を完備。
洗濯機置き場が室内にあるので洗濯機が雨風にさらされない分、長く清潔にお使い頂けます。
是非一度ご覧ください!
掲載情報について
※随時更新を心がけておりますが、掲載している物件が万が一成約している場合もございますので予めご了承下さいませ。
※駐車場・駐輪場・バイク置場の空き状況についてはお問い合わせ下さい。
※ペット飼育やSOHO利用・楽器使用の可否に関しては、建物の管理規約で可能になっていても、お部屋の所有者様によって禁止の場合もございますので御注意下さい。
詳細はメールやお電話にてスタッフまでご相談下さい。
※駐車場・駐輪場・バイク置場の空き状況についてはお問い合わせ下さい。
※ペット飼育やSOHO利用・楽器使用の可否に関しては、建物の管理規約で可能になっていても、お部屋の所有者様によって禁止の場合もございますので御注意下さい。
詳細はメールやお電話にてスタッフまでご相談下さい。




