OLIO湯島 ~分譲賃貸マンション~
♥お気に入りOLIO湯島 ~分譲賃貸マンション~
♥お気に入り


OLIO湯島【オリオ湯島】 2階
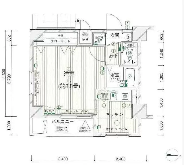
賃料 要問合せ(※) 管理費 敷金 1ヶ月 礼金 1ヶ月 間取り 1K 面積 29.08㎡ 階数 2階 状態 要問合せ(※) 入居 相談 更新料 新賃料の1ヵ月相当 諸費用 取引態様 媒介 設備 オートロック、駐輪場有、宅配BOX、コンビニ近、BS・CS、CATV、光ファイバー、インターネット対応、TVモニター付インターホン、分譲賃貸、東京大学徒歩圏、東京大学自転車圏、エレベーター、湯島小学校エリア、2階以上、二面採光、ガスキッチン、システムキッチン、フローリング、バストイレ別、室内洗濯機置場、洗濯機置場あり、角部屋、礼金1以下、法人契約相談可 物件概要
物件名 OLIO湯島【オリオ湯島】 所在地 東京都文京区湯島3丁目27-14 最寄駅 東京メトロ千代田線 湯島駅 徒歩2分
東京メトロ丸ノ内線 御茶ノ水駅 徒歩13分
学区 湯島小学校 構造 RC 階数 地上9階建て 築年月 2004年02月 駐車場 備考 詳細閲覧ありがとうございます 問合番号 66666 更新日 2019/01/08 このお部屋について
お部屋は2階部分にございます。
専有面積:29.08㎡の1Kタイプです。
☆注目ポイント☆
その①
約8.8帖の広々とした洋室♪
床は手入れの簡単なフローリング♪
その②
バス・トイレ別!水回りをゆったり使えます!
その③
室内洗濯機置場完備!雨の日でも快適♪
是非お気軽にお問い合わせください!
*室内写真は同建物別室です。掲載情報について
※随時更新を心がけておりますが、掲載している物件が万が一成約している場合もございますので予めご了承下さいませ。
※駐車場・駐輪場・バイク置場の空き状況についてはお問い合わせ下さい。
※ペット飼育やSOHO利用・楽器使用の可否に関しては、建物の管理規約で可能になっていても、お部屋の所有者様によって禁止の場合もございますので御注意下さい。
詳細はメールやお電話にてスタッフまでご相談下さい。OLIO湯島【オリオ湯島】の周辺地図
似た条件の物件
最近見た物件






