ロアール本郷東大前の賃貸情報
12/15ロアール本郷東大前の賃貸情報
12/15
ロアール本郷東大前の総合評価
総合評価
3.8
3.8
| セキュリティ | : |
築年数 | : |
| 建物設備 | : |
駅徒歩 | : |
| セキュリティ: | |
| 建物設備: | |
| 築年数: | |
| 駅徒歩: |
この物件について
| 物件名 | ロアール本郷東大前 | ||
|---|---|---|---|
| 住所 | 東京都文京区本郷5-3-7 | ||
| 最寄駅 |
本郷三丁目駅 徒歩4分 本郷三丁目駅 徒歩4分 春日駅 徒歩10分 |
||
| 学区 | 本郷小学校 | ||
| 構造 | RC | 総階数 | 地上4階建て |
| 賃料 | 管理費 | ||
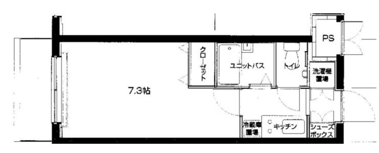
| 間取り | 面積 | ||
| 駐車場 | 無 | 築年月 | 2003年09月 |
| 問合番号 | 552142 | 更新日 | 2025/12/15 |
| 設備 | オートロック、法人契約相談可、駐輪場有、宅配BOX、低層マンション、コンビニ近、CATV、光ファイバー、インターネット対応、専用ゴミ置場、防犯カメラ、TVモニター付インターホン、分譲賃貸、東京大学徒歩圏、エレベーター、本郷小学校エリア、コンロ二口以上、ガスキッチン、エアコン、フローリング、24時間換気システム、バストイレ別、室内洗濯機置場、収納 | ||
| 備考 | 詳細閲覧ありがとうございます。最新の空室の確認、内覧のご予約はメール・電話にてお問い合わせください。 文京区の賃貸マンション・賃貸アパートはベステックスにおまかせください! | ||
物件概要
文京区本郷5丁目の閑静な住宅街に佇む低層分譲賃貸マンション【ロアール本郷東大前】のご紹介です☆
2003年9月築の地上4階建て鉄筋コンクリート(RC)造!
高い耐震性と遮音性を誇ります♪
~~交通アクセス~~
東京メトロ丸ノ内線 【本郷三丁目駅】徒歩4分
都営大江戸線 【本郷三丁目駅】徒歩4分
東京メトロ丸ノ内線 【後楽園駅】14分
都営三田線 【春日駅】徒歩10分
複数路線の利用が可能!!都心部へのアクセスも良好で休日の出先にも大変便利♪
~~周辺環境~~
【サンレモン】 徒歩1分
【ライフ】 徒歩2分
【ファミリーマート】 徒歩2分
【くすりの福太郎】 徒歩3分
【本郷四郵便局】 徒歩3分
【本富士警察署】 徒歩5分
【東京大学】至近!関係者の方には特におススメです☆
~共有設備~
・オートロック
・防犯カメラ
・敷地内ゴミ置き場
・駐輪場
・宅配ボックス
オートロック・防犯カメラ付きでセキュリティー面でも安心です!
駅徒歩10分圏内で3駅3路線アクセス可能な好立地。
周辺環境充実♪
人気の共用設備を兼ね備えたハイグレードマンションとなっております。
是非一度ご覧下さい。
2003年9月築の地上4階建て鉄筋コンクリート(RC)造!
高い耐震性と遮音性を誇ります♪
~~交通アクセス~~
東京メトロ丸ノ内線 【本郷三丁目駅】徒歩4分
都営大江戸線 【本郷三丁目駅】徒歩4分
東京メトロ丸ノ内線 【後楽園駅】14分
都営三田線 【春日駅】徒歩10分
複数路線の利用が可能!!都心部へのアクセスも良好で休日の出先にも大変便利♪
~~周辺環境~~
【サンレモン】 徒歩1分
【ライフ】 徒歩2分
【ファミリーマート】 徒歩2分
【くすりの福太郎】 徒歩3分
【本郷四郵便局】 徒歩3分
【本富士警察署】 徒歩5分
【東京大学】至近!関係者の方には特におススメです☆
~共有設備~
・オートロック
・防犯カメラ
・敷地内ゴミ置き場
・駐輪場
・宅配ボックス
オートロック・防犯カメラ付きでセキュリティー面でも安心です!
駅徒歩10分圏内で3駅3路線アクセス可能な好立地。
周辺環境充実♪
人気の共用設備を兼ね備えたハイグレードマンションとなっております。
是非一度ご覧下さい。
掲載情報について
※随時更新を心がけておりますが、掲載している物件が万が一成約している場合もございますので予めご了承下さいませ。
※駐車場・駐輪場・バイク置場の空き状況についてはお問い合わせ下さい。
※ペット飼育やSOHO利用・楽器使用の可否に関しては、建物の管理規約で可能になっていても、お部屋の所有者様によって禁止の場合もございますので御注意下さい。
詳細はメールやお電話にてスタッフまでご相談下さい。
※駐車場・駐輪場・バイク置場の空き状況についてはお問い合わせ下さい。
※ペット飼育やSOHO利用・楽器使用の可否に関しては、建物の管理規約で可能になっていても、お部屋の所有者様によって禁止の場合もございますので御注意下さい。
詳細はメールやお電話にてスタッフまでご相談下さい。
ロアール本郷東大前の周辺地図
ロアール本郷東大前のご成約済み部屋一覧
| 所在階 | 間取り | 面積 | 賃料 | 管理費 | 敷金 | 礼金 | お問い合わせ | ||||
|---|---|---|---|---|---|---|---|---|---|---|---|
| 1階 | 1K | 23.14㎡ | … | … | … | … | 契約済み | 所在階*** 間取り1K |
面積23.14㎡ 管理費*** |
敷金*** 礼金*** |
契約済み |
| 1階 | 1K | 22.60㎡ | … | … | … | … | 契約済み | 所在階*** 間取り1K |
面積22.60㎡ 管理費*** |
敷金*** 礼金*** |
契約済み |
| 1階 | 1K | 21.52㎡ | … | … | … | … | 契約済み | 所在階*** 間取り1K |
面積21.52㎡ 管理費*** |
敷金*** 礼金*** |
契約済み |
| 1階 | 1K | 22.61㎡ | … | … | … | … | 契約済み | 所在階*** 間取り1K |
面積22.61㎡ 管理費*** |
敷金*** 礼金*** |
契約済み |
| 2階 | 1K | 22.61㎡ | … | … | … | … | 契約済み | 所在階*** 間取り1K |
面積22.61㎡ 管理費*** |
敷金*** 礼金*** |
契約済み |
| 2階 | 1K | 22.80㎡ | … | … | … | … | 契約済み | 所在階*** 間取り1K |
面積22.80㎡ 管理費*** |
敷金*** 礼金*** |
契約済み |
| 2階 | 1K | 21.52㎡ | … | … | … | … | 契約済み | 所在階*** 間取り1K |
面積21.52㎡ 管理費*** |
敷金*** 礼金*** |
契約済み |
| 2階 | 1K | 22.61㎡ | … | … | … | … | 契約済み | 所在階*** 間取り1K |
面積22.61㎡ 管理費*** |
敷金*** 礼金*** |
契約済み |
| 2階 | 1K | 21.52㎡ | … | … | … | … | 契約済み | 所在階*** 間取り1K |
面積21.52㎡ 管理費*** |
敷金*** 礼金*** |
契約済み |
| 2階 | 1K | 20.90㎡ | … | … | … | … | 契約済み | 所在階*** 間取り1K |
面積20.90㎡ 管理費*** |
敷金*** 礼金*** |
契約済み |
| 2階 | 1K | 23.14㎡ | … | … | … | … | 契約済み | 所在階*** 間取り1K |
面積23.14㎡ 管理費*** |
敷金*** 礼金*** |
契約済み |
| 3階 | 1K | 21.52㎡ | … | … | … | … | 契約済み | 所在階*** 間取り1K |
面積21.52㎡ 管理費*** |
敷金*** 礼金*** |
契約済み |
| 3階 | 1K | 22.80㎡ | … | … | … | … | 契約済み | 所在階*** 間取り1K |
面積22.80㎡ 管理費*** |
敷金*** 礼金*** |
契約済み |
| 3階 | 1K | 22.61㎡ | … | … | … | … | 契約済み | 所在階*** 間取り1K |
面積22.61㎡ 管理費*** |
敷金*** 礼金*** |
契約済み |
| 3階 | 1K | 20.90㎡ | … | … | … | … | 契約済み | 所在階*** 間取り1K |
面積20.90㎡ 管理費*** |
敷金*** 礼金*** |
契約済み |
| 3階 | 1K | 22.60㎡ | … | … | … | … | 契約済み | 所在階*** 間取り1K |
面積22.60㎡ 管理費*** |
敷金*** 礼金*** |
契約済み |
| 3階 | 1K | 23.14㎡ | … | … | … | … | 契約済み | 所在階*** 間取り1K |
面積23.14㎡ 管理費*** |
敷金*** 礼金*** |
契約済み |
| 3階 | 1K | 22.52㎡ | … | … | … | … | 契約済み | 所在階*** 間取り1K |
面積22.52㎡ 管理費*** |
敷金*** 礼金*** |
契約済み |
| 4階 | 1K | 23.14㎡ | … | … | … | … | 契約済み | 所在階*** 間取り1K |
面積23.14㎡ 管理費*** |
敷金*** 礼金*** |
契約済み |
| 4階 | 1K | 22.60㎡ | … | … | … | … | 契約済み | 所在階*** 間取り1K |
面積22.60㎡ 管理費*** |
敷金*** 礼金*** |
契約済み |
| 4階 | 1K | 22.61㎡ | … | … | … | … | 契約済み | 所在階*** 間取り1K |
面積22.61㎡ 管理費*** |
敷金*** 礼金*** |
契約済み |
| 4階 | 1K | 21.52㎡ | … | … | … | … | 契約済み | 所在階*** 間取り1K |
面積21.52㎡ 管理費*** |
敷金*** 礼金*** |
契約済み |
| 4階 | 1K | 22.61㎡ | … | … | … | … | 契約済み | 所在階*** 間取り1K |
面積22.61㎡ 管理費*** |
敷金*** 礼金*** |
契約済み |
| 4階 | 1K | 21.52㎡ | … | … | … | … | 契約済み | 所在階*** 間取り1K |
面積21.52㎡ 管理費*** |
敷金*** 礼金*** |
契約済み |











最寄り駅は東京メトロ丸ノ内線【本郷三丁目駅】徒歩4分・都営大江戸線【本郷三丁目駅】も徒歩4分でアクセスできます。物件から5分圏内で駅・スーパーマーケット・コンビニエンスストア・ドラックストア・飲食店にアクセス可能な好立地となっております。
物件共用部には、オートロック・防犯カメラ付きでセキュリティー面も安心です。また、エントランスに管理人室もあります。
宅配ボックスや敷地内ごみ置き場があります。共用部にも人気の設備を兼ね備えたマンションになります。