加奈利屋館の賃貸情報
01/16加奈利屋館の賃貸情報
01/16
加奈利屋館の総合評価
総合評価
3
3
| セキュリティ | : |
築年数 | : |
| 建物設備 | : |
駅徒歩 | : |
| セキュリティ: | |
| 建物設備: | |
| 築年数: | |
| 駅徒歩: |
この物件について
| 物件名 | 加奈利屋館 | ||
|---|---|---|---|
| 住所 | 東京都文京区本郷1-10-14 | ||
| 最寄駅 |
東京メトロ丸ノ内線 本郷三丁目駅 徒歩6分 都営三田線 水道橋駅 徒歩5分 JR中央・総武線 御茶ノ水駅 徒歩10分 |
||
| 学区 | |||
| 構造 | 鉄骨 | 総階数 | 地上8階建て |
| 賃料 | 197,640円~429,975円 | 管理費 | 0円~43,920円 |
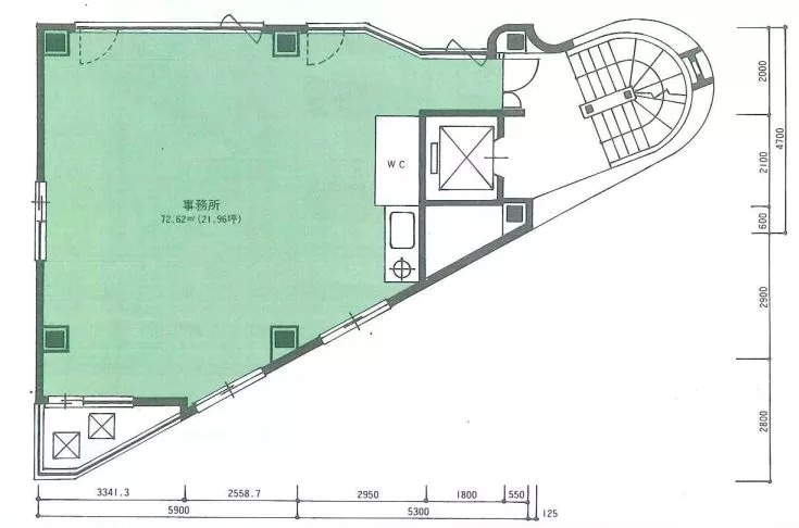
| 間取り | 1R | 面積 | 72.62㎡~104.80㎡ |
| 駐車場 | 無 | 築年月 | 1990年12月 |
| 問合番号 | 3297894 | 更新日 | 2015/01/16 |
| 設備 | 事務所、コンビニ近、光ファイバー、インターネット対応、防犯カメラ、東京大学徒歩圏、エレベーター、二面採光、エアコン、角部屋、法人契約相談可 | ||
| 備考 | 加奈利屋館の賃貸のご紹介です。 詳細閲覧ありがとうございます。最新の空室の確認、内覧のご予約はメール・電話にてお問い合わせください。 文京区の賃貸マンション・賃貸アパートはベステックスにおまかせください! | ||
物件概要
文京区本郷1丁目の賃貸事務所【加奈利屋館】
1990年12月築の鉄骨造地上8階建て賃貸事務所。
お洒落な外観と交通アクセスの良い立地が魅力です!
三田線水道橋駅徒歩5分、JR総武中央線も使用可能♪
丸ノ内線・大江戸線本郷三丁目駅徒歩6分、JR総武中央線・丸ノ内線御茶ノ水駅徒歩10分、
3駅4路線使用可能の好立地。
≪加奈利屋館の周辺環境≫
壱岐坂通り沿い。
本郷三丁目周辺は【スーパー:マルエツプチ、マイバスケット】・【コンビニ】・
【ドラッグストア】・【喫茶店】・【クリーニング店】・【美容院・床屋】、
その他飲食店も多数あり♪
【東京ドーム】・【ラクーア】・【文京区役所】・【順天堂病院】もすべて徒歩圏内。
とても便利な立地です。
1990年12月築の鉄骨造地上8階建て賃貸事務所。
お洒落な外観と交通アクセスの良い立地が魅力です!
三田線水道橋駅徒歩5分、JR総武中央線も使用可能♪
丸ノ内線・大江戸線本郷三丁目駅徒歩6分、JR総武中央線・丸ノ内線御茶ノ水駅徒歩10分、
3駅4路線使用可能の好立地。
≪加奈利屋館の周辺環境≫
壱岐坂通り沿い。
本郷三丁目周辺は【スーパー:マルエツプチ、マイバスケット】・【コンビニ】・
【ドラッグストア】・【喫茶店】・【クリーニング店】・【美容院・床屋】、
その他飲食店も多数あり♪
【東京ドーム】・【ラクーア】・【文京区役所】・【順天堂病院】もすべて徒歩圏内。
とても便利な立地です。
掲載情報について
※随時更新を心がけておりますが、掲載している物件が万が一成約している場合もございますので予めご了承下さいませ。
※駐車場・駐輪場・バイク置場の空き状況についてはお問い合わせ下さい。
※ペット飼育やSOHO利用・楽器使用の可否に関しては、建物の管理規約で可能になっていても、お部屋の所有者様によって禁止の場合もございますので御注意下さい。
詳細はメールやお電話にてスタッフまでご相談下さい。
※駐車場・駐輪場・バイク置場の空き状況についてはお問い合わせ下さい。
※ペット飼育やSOHO利用・楽器使用の可否に関しては、建物の管理規約で可能になっていても、お部屋の所有者様によって禁止の場合もございますので御注意下さい。
詳細はメールやお電話にてスタッフまでご相談下さい。
加奈利屋館の周辺地図
加奈利屋館のご成約済み部屋一覧
| 所在階 | 間取り | 面積 | 賃料 | 管理費 | 敷金 | 礼金 | お問い合わせ | ||||
|---|---|---|---|---|---|---|---|---|---|---|---|
| 1階 | 1R | 104.80㎡ | … | … | … | … | 契約済み | 所在階*** 間取り1R |
面積104.80㎡ 管理費*** |
敷金*** 礼金*** |
契約済み |
| 5階 | 1R | 72.62㎡ | … | … | … | … | 契約済み | 所在階*** 間取り1R |
面積72.62㎡ 管理費*** |
敷金*** 礼金*** |
契約済み |






_id2888.webp)


