キーワード検索

メインステージ御茶ノ水の賃貸情報

   12/14

メインステージ御茶ノ水の賃貸情報


  12/14
1/10
募集中の部屋一覧
間取図 所在階 間取り 面積 賃料 管理費 敷金 礼金  
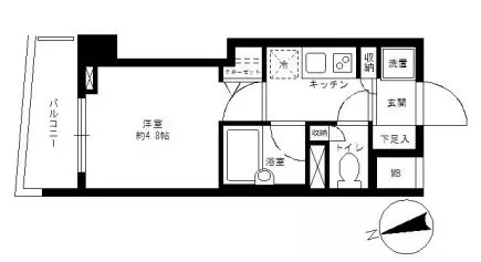
3階 1K 23.51㎡ 96,000円 10,000円 1ヶ月 1ヶ月 所在階3階
面積23.51㎡
間取り1K
賃料 96,000円
管理費10,000円
敷金1ヶ月
礼金1ヶ月

お問い合わせ
お気に入り お問い合わせ

スタッフのコメント

スタッフ画像 瓦海
文京区湯島2丁目・湯島天神付近の情緒あるエリアに佇む分譲マンション【メインステージ御茶ノ水】のご紹介です!お部屋は1Kや1Rなどの単身者様向けのお部屋を中心にご用意。東京大学の龍岡門や春日門まで徒歩6分ほどでアクセス可能となっており、東大生の方や関係者の方には魅力的な立地でございます◎近隣には2階建の大型スーパー・サミットがオープンし、上野方面にも歩いてアクセス可能ですので、お買い物場所に困ることも無さそうです♪文京区に詳しいベステックスまで、ぜひお問い合わせくださいませ!

LINEでお問い合わせはこちら
LINE問合せ
メインステージ御茶ノ水の総合評価
総合評価
3.3
セキュリティ ★★★★☆   築年数 ★★★☆☆  
建物設備 ★★★☆☆   駅徒歩 ★★★☆☆  
セキュリティ:    ★★★★☆
建物設備: ★★★☆☆
築年数: ★★★☆☆
駅徒歩: ★★★☆☆

この物件について

物件名メインステージ御茶ノ水
住所東京都文京区湯島2-32-8
最寄駅 東京メトロ千代田線 湯島駅 徒歩4分
東京メトロ丸ノ内線 本郷三丁目駅 徒歩8分
JR中央線(快速) 御茶ノ水駅 徒歩12分
学区湯島小学校
構造RC 総階数地上9階建て 
賃料96,000円 管理費10,000円
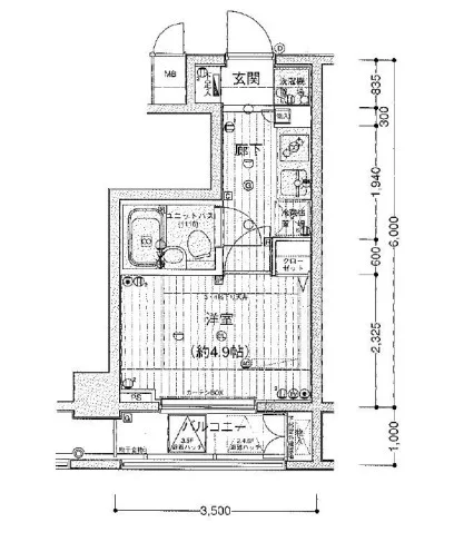
間取り1K 面積23.51㎡
駐車場 築年月2001年02月
問合番号5285465 更新日2025/12/14
設備オートロック、法人契約相談可、宅配BOX、コンビニ近、BS・CS、光ファイバー、インターネット対応、専用ゴミ置場、分譲賃貸、東京大学徒歩圏、エレベーター、湯島小学校エリア、ガスキッチン、システムキッチン、エアコン、フローリング、浴室乾燥、室内洗濯機置場、洗濯機置場あり、収納
備考メインステージ御茶ノ水の分譲賃貸マンション情報☆ 
詳細閲覧ありがとうございます。最新の空室の確認、内覧のご予約はメール・電話にてお問い合わせください。 文京区の賃貸マンション・賃貸アパートはベステックスにおまかせください!

物件概要

文京区湯島2丁目に佇む分譲賃貸マンション『メインステージ御茶ノ水』のご紹介です♪

2001年2月築の鉄筋コンクリート造地上9階建て分譲マンション♪
高級感のある鉄筋コンクリート造は、耐震性や遮音性に優れており、住む方に安心感を与えてくれます♪
設備は分譲マンションならではの充実仕様!
セキュリティとしてオートロックはもちろん、宅配ボックスも完備しており、突然の来客時でも顔を会わせること無く対応可能です。
インターネット環境(光ファイバー)やBS・CSアンテナも完備♪

~交通アクセス~
交通便は、東京メトロ千代田線「湯島駅」徒歩4分・東京メトロ丸の内線・都営大江戸線「本郷三丁目駅」徒歩8分、JR中央線、総武線「御茶ノ水駅」徒歩12分の好立地♪5沿線3駅利用可能で都心部へのアクセス良好です♪

~周辺環境~
物件周辺には、スーパー【肉のハナマサ湯島店】、コンビニ【ローソン湯島天神店】、ドラッグストア【薬ヒグチ湯島店】、銀行【朝日信用金庫湯島支店】など徒歩圏内にあり、生活買い物に便利な立地です♪

東京大学・竜岡門至近♪是非一度ご覧下さい☆
LINEでお問い合わせはこちら
LINE問合せ

掲載情報について

※随時更新を心がけておりますが、掲載している物件が万が一成約している場合もございますので予めご了承下さいませ。
※駐車場・駐輪場・バイク置場の空き状況についてはお問い合わせ下さい。
※ペット飼育やSOHO利用・楽器使用の可否に関しては、建物の管理規約で可能になっていても、お部屋の所有者様によって禁止の場合もございますので御注意下さい。
詳細はメールやお電話にてスタッフまでご相談下さい。

メインステージ御茶ノ水の周辺地図

メインステージ御茶ノ水のご成約済み部屋一覧

所在階 間取り 面積 賃料 管理費 敷金 礼金 お問い合わせ
1階 1K 18.78㎡ 契約済み 所在階***
間取り1K
面積18.78㎡
管理費***
敷金***
礼金***
契約済み
1階 1K 19.18㎡ 契約済み 所在階***
間取り1K
面積19.18㎡
管理費***
敷金***
礼金***
契約済み
2階 1K 19.18㎡ 契約済み 所在階***
間取り1K
面積19.18㎡
管理費***
敷金***
礼金***
契約済み
2階 1K 18.01㎡ 契約済み 所在階***
間取り1K
面積18.01㎡
管理費***
敷金***
礼金***
契約済み
2階 1K 18.44㎡ 契約済み 所在階***
間取り1K
面積18.44㎡
管理費***
敷金***
礼金***
契約済み
2階 1K 18.78㎡ 契約済み 所在階***
間取り1K
面積18.78㎡
管理費***
敷金***
礼金***
契約済み
2階 1K 20.10㎡ 契約済み 所在階***
間取り1K
面積20.10㎡
管理費***
敷金***
礼金***
契約済み
3階 1K 18.44㎡ 契約済み 所在階***
間取り1K
面積18.44㎡
管理費***
敷金***
礼金***
契約済み
3階 1K 18.01㎡ 契約済み 所在階***
間取り1K
面積18.01㎡
管理費***
敷金***
礼金***
契約済み
3階 1K 18.78㎡ 契約済み 所在階***
間取り1K
面積18.78㎡
管理費***
敷金***
礼金***
契約済み
3階 1K 20.10㎡ 契約済み 所在階***
間取り1K
面積20.10㎡
管理費***
敷金***
礼金***
契約済み
4階 1K 20.10㎡ 契約済み 所在階***
間取り1K
面積20.10㎡
管理費***
敷金***
礼金***
契約済み
5階 1K 18.00㎡ 契約済み 所在階***
間取り1K
面積18.00㎡
管理費***
敷金***
礼金***
契約済み
5階 1K 18.78㎡ 契約済み 所在階***
間取り1K
面積18.78㎡
管理費***
敷金***
礼金***
契約済み
5階 1K 18.44㎡ 契約済み 所在階***
間取り1K
面積18.44㎡
管理費***
敷金***
礼金***
契約済み
6階 1K 18.92㎡ 契約済み 所在階***
間取り1K
面積18.92㎡
管理費***
敷金***
礼金***
契約済み
6階 1K 22.50㎡ 契約済み 所在階***
間取り1K
面積22.50㎡
管理費***
敷金***
礼金***
契約済み
6階 1K 18.00㎡ 契約済み 所在階***
間取り1K
面積18.00㎡
管理費***
敷金***
礼金***
契約済み
6階 1K 18.01㎡ 契約済み 所在階***
間取り1K
面積18.01㎡
管理費***
敷金***
礼金***
契約済み
6階 1R 18.01㎡ 契約済み 所在階***
間取り1R
面積18.01㎡
管理費***
敷金***
礼金***
契約済み
7階 1K 18.00㎡ 契約済み 所在階***
間取り1K
面積18.00㎡
管理費***
敷金***
礼金***
契約済み
7階 1K 25.61㎡ 契約済み 所在階***
間取り1K
面積25.61㎡
管理費***
敷金***
礼金***
契約済み
7階 1K 20.42㎡ 契約済み 所在階***
間取り1K
面積20.42㎡
管理費***
敷金***
礼金***
契約済み
8階 1K 21.77㎡ 契約済み 所在階***
間取り1K
面積21.77㎡
管理費***
敷金***
礼金***
契約済み
8階 1K 20.30㎡ 契約済み 所在階***
間取り1K
面積20.30㎡
管理費***
敷金***
礼金***
契約済み
8階 1K 18.44㎡ 契約済み 所在階***
間取り1K
面積18.44㎡
管理費***
敷金***
礼金***
契約済み
8階 1K 21.19㎡ 契約済み 所在階***
間取り1K
面積21.19㎡
管理費***
敷金***
礼金***
契約済み
9階 1K 26.02㎡ 契約済み 所在階***
間取り1K
面積26.02㎡
管理費***
敷金***
礼金***
契約済み
その他(全28件)を全て表示する

似た条件の物件

最近見た物件